Секреты и правила планировки дома.
Главными свойствами при планировке дома должна быть изобретательность и оригинальность. Опыт многих специалистов не раз успел доказать, что расположение элементов декора, интерьера в доме должны исходить из определённых правил и принципов, а не по собственному зову фантазии.
Конечно, можно опираться на традиции других стран, например Англии. Это отделение столовой от кухни посредством лестницы. Следовательно, когда вы накрываете на стол, вам нужно приложить много усилий, чтобы из одной комнаты в другую переносить еду, чай и другие приготовления.
Для того, чтобы планировка дома была максимум удобна, нужно сделать планировка доматщательный проект каждой комнаты. Например, в загородных домах коридор принято делать небольшим, с учётом того, что существует ещё много комнат, совмещающие в себе несколько функций. Оптимальная планировка загородного дома.
Например, кухня выполняет также роль столовой, веранда вполне может служить в качестве прихожей, а спальня может стать для хозяина его кабинетом.
Кухня обязательно должна иметь помимо искусственного света - природный. Рекомендуется располагать эту комнату с наружной стороны загородного дома, если быть точнее - поближе к выходу. В случае если же площадь дома позволяет вам сделать нечто большее, вы можете прекрасно создать второй выход из кухни, так как её масштабы легко это позволяют.
Особое богатство, изысканность загородному дому придаёт наличие камина в гостиной. Обычно он пристраивается к наружной или же внутренней стене, чтобы обязательно рядом смогли находиться ниши для топлива.
Мансардный этаж, как правило, содержит спальни. Такая планировка дома, как планировка домавстраивание полок и шкафов под скатами крыш, будет очень экономной для хозяев.
В том случае, если ваш загородный дом имеет все условия для подвала, то такие подсобные помещения используют чаще всего для кладовых и котельных.
Таким образом, вы узнали основные секреты, при реализации которых планировка дома может пройти более чем успешно. В случае если вы последуете основным рекомендациям вашего дизайнера, то можете добиться великих успехов, совмещая в вашем доме не только основные комнаты, но и спортзал, библиотеку и даже бильярдную.
Планировка загородных домов.
Удачная планировка загородного дома - это комфорт и хорошее настроение, неудачная - постоянный источник раздражения и усталости. Есть общие принципы планировки, и есть ваша индивидуальность. В том случае, если бы планировка загородного дома не являлась отчасти искусством, то все проекты домов были бы типовыми. Иногда, и довольно часто, индивидуальность заказчика проявляется в планировке загородного дома настолько сильно, что по ней можно без труда угадать его характер, увлечения, вкусы и приоритеты. Тем не менее, мы начнем все же с общих принципов планировки загородного дома. Основные правила планировки комнат.
Общие принципы планировки загородного дома.
С точки зрения технологии строительства и экономии бюджета в планировке загородного дома следует учесть местоположение и протяженность инженерных коммуникаций. Водопровод, канализацию, потребителей магистрального газа нужно постараться по возможности расположить компактно. Удобно, если кухня примыкает к ванной комнате, а бойлерная находится неподалеку. При планировании санузлов и ванных комнат на разных этажах наиболее экономичный и технически грамотный вариант, - размещение этих помещений друг над другом, что позволяет обойтись одним общим водопроводным стояком и одной Фановой трубой.
Хотя технологические правила планировки загородного дома важны, но намного важнее обеспечить должный комфорт и угодить своим предпочтениям и привычкам. Комфорт, прежде всего, связан с достаточным количеством комнат в доме. Помимо хозяйской спальни, своя отдельная комната должна быть у каждого члена семьи; только маленьких детей одного пола позволительно селить вдвоем, однако нужно помнить о том, что дети вырастут, и очень скоро им понадобятся собственные помещения. Нужно предусмотреть и гостевые спальни - в таком количестве, сколько может понадобиться сообразно вашему гостеприимству. В крайнем случае, гостей можно поселить на ночь в гостиной, библиотеке или кабинете. Ванные комнаты следует разместить неподалеку от спален.
Хорошо, когда хотя бы одна спальня находится на первом этаже. Это удобно для пожилых людей, и даже если дом строится для молодой семьи, служить ей он будет много десятилетий. Кстати, въезжая в новый дом с одним ребенком, стоит заранее задуматься о том, не появятся ли вскоре еще один или два. Иными словами, планировать загородный дом лучше всего "на Вырост".
Общественную зону - гостиную, кухню - столовую, комнату отдыха и т. д. - можно спланировать самыми разными способами. Тут очень многое зависит от пристрастий и творческой фантазии заказчика. Нужно иметь в виду, что разгораживать общие помещения стенами и дверями следует далеко не всегда; единое пространство, зонированное посредством мебели, камина, разных стилистических и цветовых интерьерных решений, создает ощущение простора и общности, разные ракурсы и перспективы позволяют создать очень красивые, необычные интерьеры.
Создание единой общественной зоны позволяет обойтись практически без коридоров, сэкономив, таким образом, полезную площадь дома. Вообще, обилие коридоров говорит о не слишком удачной планировке.
Многим нравится второй свет в гостиной зале. Использование вертикали открывает дополнительные возможности дизайнеру. Тут есть над чем пофантазировать: окна, балкончики, лестница, наклонный потолок с выступающими балками и стропилами, перепады высоты, светильники на разных уровнях … однако второй свет - это уменьшение полезной площади вашего дома. В небольших домах стоит подумать и подсчитать, что для вас важнее: второй свет в зале или пара лишних спален на втором этаже. В разноуровневых домах возможен компромиссный вариант: устроить, так сказать, "Полуторасветный" зал под наклонной кровлей, опускающейся до уровня первого этажа.
Жизнь в загородном доме следует, насколько возможно, приблизить к природе. Этого можно достичь с помощью планировки загородного дома. Большую роль играют открытые террасы, на которых можно подышать свежим воздухом в любую погоду, а летом - почитать, попить чаю, сразиться в шахматы или домино. Большая площадь остекления в гостиной, столовой и других общественных помещениях сближает внутреннее пространство дома с окружающим пейзажем, создает ощущение простора и свободы. Для усиления данного эффекта в гостиной можно сделать эркер, как скажем, в популярных проектах "Нахабино", "лесное" и др.
Различные варианты планировки загородного дома.
Загородный дом можно спланировать в одном, двух или трех уровнях. Наибольшей популярностью пользуются двухуровневые варианты со вторым мансардным этажом.
Чаще всего на первом этаже размещаются общественные помещения: гостиная, кухня - столовая, комната отдыха, - а также служебные помещения: топочная, бойлерная, щитовая, постирочная, кладовая. Входную дверь в нашем климате целесообразно отделить тамбуром; к прихожей может примыкать гардеробная; также на первом этаже оборудуется санузел. Здесь же может находиться гостевая спальня или спальня для пожилых членов семьи, порой - хозяйский кабинет.
Второй этаж отдается, как правило, приватным комнатам: спальням, детским, иногда - кабинету. Оборудуется необходимое количество ванных комнат (скажем, на четыре спальни одного санузла уже маловато.
Какие могут быть варианты планировки загородного дома? На первом этаже, в одном инженерном блоке с санузлом и топочной, можно разместить сауну с комнатой отдыха. А можно, напротив, вынести баню за основной периметр постройки, соединив с нею крытой террасой. В некоторых случаях сауну размещают даже на втором этаже, в приватной зоне!
В цокольном этаже можно устроить гараж, бассейн, мастерскую и даже винный погребок.
На втором этаже можно сделать вторую небольшую гостиную. В ней, к примеру, дети могут принимать своих гостей, в то время как в большой гостиной на первом этаже собираются взрослые или в одной гостиной - мужская компания, а во второй - женская.
Как на первом, так и на втором этаже можно оборудовать бильярдную.
Но, если из окон второго этажа открывается великолепный вид на дали, то ничто не мешает поменять местами функции первого и второго этажей: пусть спальни и детские разместятся на первом, а гостиная с кухней - столовой - на втором!
В загородных домах, как правило, полностью используется жилое пространство мансарды под кровлей. При этом высота помещения под коньком может достигать 5-7 и более метров. Возможно, вам покажется разумным устроить там своего рода "Бельэтаж", оборудовав детскую игровую (и гостевую) зону, этакий "капитанский мостик", где дети будут чувствовать себя вполне комфортно, самостоятельно и автономно.
Назовем некоторые проекты двухуровневых загородных домов с наиболее удачной планировкой: "Нахабино" (107, 4 кв. Метров, дерево), "Подлипки" (178, 7 кв. Метров, дерево), "Загорье" (157, 7 кв. Метров, дерево), "Пушкино" (197, 3 кв. Метров, кирпич), "Дом Шале" (321, 5 кв. Метров, комбинированный.
Интересными, хорошо спланированными вариантами трехуровневых загородных домов являются проекты "Голицыно" (317, 5 кв. Метров, дерево), "Мытищи" (298, 7 кв. Метров, комбинированный.
Одноэтажные загородные дома также пользуются спросом. Одни из них тяготеют по стилю к скандинавской деревянной архитектуре, другие - к русским "Избушкам на Курьих Ножках". Являясь менее экономичными по расходу материала на квадратный метр полезной площади, они, тем не менее, допускают интересные архитектурные и планировочные решения.
Планировка одноэтажного загородного дома свои особенности имеет. Деление помещений на общественную и приватную зоны в одноэтажных домах производится не по вертикали, а по горизонтали. Можно разместить гостиную, кухню - столовую, комнату отдыха, гостевую, бильярдную в одном крыле дома, а спальни членов семьи, кабинет - в другом. Вполне возможно при этом установить два камина - по одному в каждом крыле. Другое планировочное решение: общественную зону поместить в центр здания, а жилые помещения разнести по краям.
Какие вопросы вам задаст архитектор?
Заказчик, обращаясь в строительную компанию, обычно имеет в голове (или на бумаге) некую планировку загородного дома, который он хочет построить. Задача архитектора - превратить данный план в техническое задание. Для этого он захочет узнать, сколько этажей будет в вашем доме, в том числе - мансардный? Сколько спален, на каких членов семьи? Сколько гостевых комнат? Сколько санузлов? Будут ли в доме открытые террасы, балконы? Хотите ли вы, чтобы в доме был двухсветный зал? Намерены ли вы объединить гостиную, столовую и кухню в единое пространство? Ли эркер нужен? Будет ли установлен камин? Будет ли кабинет, бильярдная и т. п.? В случае если дом двухэтажный, то где следует расположить лестницу: в гостиной, где она послужит одной из основных деталей интерьера, или в отдельном тамбуре? Хотите ли вы, чтобы в доме под одной крышей находились гараж, сауна, бассейн и т. п.?
Возможно, получив ответы на все эти вопросы, архитектор предложит ближайший к вашему плану типовой проект загородного дома с уже продуманной, проверенной планировкой. Этот проект всегда можно доработать с учетом ваших требований и пристрастий.
Варианты планировки домов.
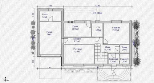
Планировка дома - часть проектной документации, в которой отображается расположение основных конструкций дома, перегородок, санузлов, окон и дверей. Среди дополнительной информации, для отображения которой используют план дома, можно выделить площадь помещений, размеры, материал стен, расстановка планировка комнат в двухэтажном домесантехнических устройств, привязка оси, а также отметки, к примеру, на лестничной клетке. В этой статье мы рассмотрим, как создается планировка плана дома, а также ее наиболее распространенные варианты.
Планировка дома.
Архитекторы тщательно изучают потребности людей, чтобы планировка дома была для них наиболее комфортной. В связи с этим существует два вида проектирования домов: создать вначале объем и затем его заполнить необходимыми помещениями или сначала расставить правильно помещения, а потом создать из них объемную модель дома - подготовка к разработке планировки дома. Планы домов разрабатываются на этапе проектирования - посмотреть, как разрабатывается планировка дома в специализированной программе. Довольно часто для дома необходимо несколько планов дома:
Цокольного этажа;.
Типового;.
Мансардного.
Они из-за особенностей расположения жилой площади различаются. К примеру, на мансардном этаже нет необходимости в устройстве всех капитальных стен. Кроме того, часть полезной площади будет утеряна из-за низкой высоты потолка возле ограждающих стен дома. Итак мы рассмотрим планы и планировки дома 6 х 6; 6 х 8; 6 х 9; 7 х 7; 8 х 8; 8 х 10; 10 х 10; 10 х 12; 12 х 12.
Можно также ориентироваться на конфигурацию дома, к примеру:
Планировка двухэтажного дома;.
Планировка дома с цокольным этажом;.
Планировка дома с мансардным этажом;.
Планировка дома с гаражом.
Составление этого чертежа также с учетом типоразмеров сборных элементов ведется. Такой расчет поможет уменьшить количество мест недобора фундаментных блоков, элементов перекрытия и др. Процесс начинается с вычерчивания осей дома и привязки стен к ним. После этого наносят перегородки, окна и двери - посмотреть урок вычерчивания дополнительных элементов на плане дома. Заключительным этапом становятся подписи помещений, их площади, а также нанесение размеров - обозначение на чертежах планировки дома. После строительства дома бти составляет поэтажные планы помещений для учета изменений, которые будут предпринимать собственники.
План дома, популярные планировки.
Неправильное проектирование приводит к необходимости осуществлять перепланировку - работу, связанную с изменением объемно-планировочного решения дома. Здание может иметь несколько больших комнат или всего 2. их число и площадь определяются габаритными размерами дома: 6 х 6; 6 х 8; 6 х 9; 7 х 7; 8 х 8; 8 х 10; 10 х 10; 10 х 12; 12 х 12.
Важно правильно скомпоновать полезную площадь здания. В процессе этой работы обращают внимание на два коэффициента, которые помогают оценить площадь, занятую коридорами и подсобными помещениями и сравнить ее с жилой.
Примеры планировок внутренних помещений домов.
Загородная недвижимость - прекрасная возможность реализовать все свои мечты, создав неповторимое, комфортное, уютное поместье для всей своей семьи. Каждый, кто начинает строительство собственного дома мечтает именно об этом. Для создания подходящей атмосферы необходима правильная внутренняя планировка частного дома, ведь именно от этого зависит благоустроенность и удобство всех домочадцев.
Как правило, планировка внутренних помещений постройки проводится еще при проектировании фундамента под разделительные и несущие перегородки. Такой подход поможет в будущем значительно сэкономить финансовые затраты на работе строительной бригады, плюс ко всему сократить время. Также учитывается и то, что дом строится не на один десяток лет, поэтому нужно учесть тот факт, что в будущем в нем, возможно, будет проживать не одна семья, а значит, он должен быть просторным и максимально удобным.
Правила планировки будущих комнат:
Дом должен иметь минимум три комнаты, для каждого члена семьи по комнате.
Спальни планируют закрытыми, не проходимого типа.
Двери со всех спален должны выходить в одно помещение - холл или гостиную.
Особого внимания при планировке стоит уделить кухне, так как при удачном проектировании в ней можно отвести место и для столовой. 9 м? - это оптимальный вариант кухонного помещения, который вместит в себя все самые необходимые атрибуты: мебель, холодильник, плита, вытяжка, полки и мн. др. Также стоит учесть приемлемую ширину кухни, которая считается 2, 5 м. при таких параметрах в такое помещение гармонично впишется не только вся кухонная атрибутика, но и бытовая техника, которая необходима для ежедневного пользования любой хозяйке. Что касается детской комнаты, то она должна быть отдельной, не совмещенной с комнатой родителей, так чтоб в будущем в ней спокойно мог расположиться подрос.


Источник: https://interior.ru-best.com/interer-dlya-doma/sekrety-i-pravila-planirovki-doma-1