Секреты и правила планировки дома.
- Секреты и правила планировки дома.
- Правила планировки дома по сторонам света. Расположение дома по сторонам света
- Правила планировки участка загородного дома. Планировка дачного участка с уклоном
- Правила планировки дома по сторонам. Нормы и правила расположения построек на участке
- Правила планировки дома из бруса. Планировка домов из бруса
- Правила планировки дома с мансардой. Правила проведения работ
- Правила планировки участка дома. Составление план-схемы
Секреты и правила планировки дома.
Главными свойствами при планировке дома должна быть изобретательность и оригинальность. Опыт многих специалистов не раз успел доказать, что расположение элементов декора, интерьера в доме должны исходить из определённых правил и принципов, а не по собственному зову фантазии.
Конечно, можно опираться на традиции других стран, например Англии. Это отделение столовой от кухни посредством лестницы. Следовательно, когда вы накрываете на стол, вам нужно приложить много усилий, чтобы из одной комнаты в другую переносить еду, чай и другие приготовления.
Для того, чтобы планировка дома была максимум удобна, нужно сделать планировка доматщательный проект каждой комнаты. Например, в загородных домах коридор принято делать небольшим, с учётом того, что существует ещё много комнат, совмещающие в себе несколько функций. Оптимальная планировка загородного дома.
Например, кухня выполняет также роль столовой, веранда вполне может служить в качестве прихожей, а спальня может стать для хозяина его кабинетом.
Кухня обязательно должна иметь помимо искусственного света - природный. Рекомендуется располагать эту комнату с наружной стороны загородного дома, если быть точнее - поближе к выходу. Только в том случае, если же площадь дома позволяет вам сделать нечто большее, вы можете прекрасно создать второй выход из кухни, так как её масштабы легко это позволяют.
Особое богатство, изысканность загородному дому придаёт наличие камина в гостиной. Обычно он пристраивается к наружной или же внутренней стене, чтобы обязательно рядом смогли находиться ниши для топлива.
Мансардный этаж, как правило, содержит спальни. Такая планировка дома, как планировка домавстраивание полок и шкафов под скатами крыш, будет очень экономной для хозяев.
В случае если ваш загородный дом имеет все условия для подвала, то такие подсобные помещения используют чаще всего для кладовых и котельных.
Таким образом, вы узнали основные секреты, при реализации которых планировка дома может пройти более чем успешно. Таким образом, если вы последуете основным рекомендациям вашего дизайнера, то можете добиться великих успехов, совмещая в вашем доме не только основные комнаты, но и спортзал, библиотеку и даже бильярдную.
Планировка загородных домов.
Удачная планировка загородного дома - это комфорт и хорошее настроение, неудачная - постоянный источник раздражения и усталости. Есть общие принципы планировки, и есть ваша индивидуальность. Лишь в том случае, если бы планировка загородного дома не являлась отчасти искусством, то все проекты домов были бы типовыми. Иногда, и довольно часто, индивидуальность заказчика проявляется в планировке загородного дома настолько сильно, что по ней можно без труда угадать его характер, увлечения, вкусы и приоритеты. Тем не менее, мы начнем все же с общих принципов планировки загородного дома. Основные правила планировки комнат.
Общие принципы планировки загородного дома.
С точки зрения технологии строительства и экономии бюджета в планировке загородного дома следует учесть местоположение и протяженность инженерных коммуникаций. Водопровод, канализацию, потребителей магистрального газа нужно постараться по возможности расположить компактно. Удобно, если кухня примыкает к ванной комнате, а бойлерная находится неподалеку. При планировании санузлов и ванных комнат на разных этажах наиболее экономичный и технически грамотный вариант, - размещение этих помещений друг над другом, что позволяет обойтись одним общим водопроводным стояком и одной Фановой трубой.
Хотя технологические правила планировки загородного дома важны, но намного важнее обеспечить должный комфорт и угодить своим предпочтениям и привычкам. Комфорт, прежде всего, связан с достаточным количеством комнат в доме. Помимо хозяйской спальни, своя отдельная комната должна быть у каждого члена семьи; только маленьких детей одного пола позволительно селить вдвоем, однако нужно помнить о том, что дети вырастут, и очень скоро им понадобятся собственные помещения. Нужно предусмотреть и гостевые спальни - в таком количестве, сколько может понадобиться сообразно вашему гостеприимству. В крайнем случае, гостей можно поселить на ночь в гостиной, библиотеке или кабинете. Ванные комнаты следует разместить неподалеку от спален.
Хорошо, когда хотя бы одна спальня находится на первом этаже. Это удобно для пожилых людей, и даже если дом строится для молодой семьи, служить ей он будет много десятилетий. Кстати, въезжая в новый дом с одним ребенком, стоит заранее задуматься о том, не появятся ли вскоре еще один или два. Иными словами, планировать загородный дом лучше всего "на Вырост".
Общественную зону - гостиную, кухню - столовую, комнату отдыха и т. д. - можно спланировать самыми разными способами. Тут очень многое зависит от пристрастий и творческой фантазии заказчика. Нужно иметь в виду, что разгораживать общие помещения стенами и дверями следует далеко не всегда; единое пространство, зонированное посредством мебели, камина, разных стилистических и цветовых интерьерных решений, создает ощущение простора и общности, разные ракурсы и перспективы позволяют создать очень красивые, необычные интерьеры.
Создание единой общественной зоны позволяет обойтись практически без коридоров, сэкономив, таким образом, полезную площадь дома. Вообще, обилие коридоров говорит о не слишком удачной планировке.
Многим нравится второй свет в гостиной зале. Использование вертикали открывает дополнительные возможности дизайнеру. Тут есть над чем пофантазировать: окна, балкончики, лестница, наклонный потолок с выступающими балками и стропилами, перепады высоты, светильники на разных уровнях … однако второй свет - это уменьшение полезной площади вашего дома. В небольших домах стоит подумать и подсчитать, что для вас важнее: второй свет в зале или пара лишних спален на втором этаже. В разноуровневых домах возможен компромиссный вариант: устроить, так сказать, "Полуторасветный" зал под наклонной кровлей, опускающейся до уровня первого этажа.
Жизнь в загородном доме следует, насколько возможно, приблизить к природе. Этого можно достичь с помощью планировки загородного дома. Большую роль играют открытые террасы, на которых можно подышать свежим воздухом в любую погоду, а летом - почитать, попить чаю, сразиться в шахматы или домино. Большая площадь остекления в гостиной, столовой и других общественных помещениях сближает внутреннее пространство дома с окружающим пейзажем, создает ощущение простора и свободы. Для усиления данного эффекта в гостиной можно сделать эркер, как скажем, в популярных проектах "Нахабино", "лесное" и др.
Различные варианты планировки загородного дома.
Загородный дом можно спланировать в одном, двух или трех уровнях. Наибольшей популярностью пользуются двухуровневые варианты со вторым мансардным этажом.
Чаще всего на первом этаже размещаются общественные помещения: гостиная, кухня - столовая, комната отдыха, - а также служебные помещения: топочная, бойлерная, щитовая, постирочная, кладовая. Входную дверь в нашем климате целесообразно отделить тамбуром; к прихожей может примыкать гардеробная; также на первом этаже оборудуется санузел. Здесь же может находиться гостевая спальня или спальня для пожилых членов семьи, порой - хозяйский кабинет.
Второй этаж отдается, как правило, приватным комнатам: спальням, детским, иногда - кабинету. Оборудуется необходимое количество ванных комнат (скажем, на четыре спальни одного санузла уже маловато.
Какие могут быть варианты планировки загородного дома? На первом этаже, в одном инженерном блоке с санузлом и топочной, можно разместить сауну с комнатой отдыха. А можно, напротив, вынести баню за основной периметр постройки, соединив с нею крытой террасой. В некоторых случаях сауну размещают даже на втором этаже, в приватной зоне!
В цокольном этаже можно устроить гараж, бассейн, мастерскую и даже винный погребок.
На втором этаже можно сделать вторую небольшую гостиную. В ней, к примеру, дети могут принимать своих гостей, в то время как в большой гостиной на первом этаже собираются взрослые или в одной гостиной - мужская компания, а во второй - женская.
Как на первом, так и на втором этаже можно оборудовать бильярдную.
Но, если из окон второго этажа открывается великолепный вид на дали, то ничто не мешает поменять местами функции первого и второго этажей: пусть спальни и детские разместятся на первом, а гостиная с кухней - столовой - на втором!
В загородных домах, как правило, полностью используется жилое пространство мансарды под кровлей. При этом высота помещения под коньком может достигать 5-7 и более метров. Возможно, вам покажется разумным устроить там своего рода "Бельэтаж", оборудовав детскую игровую (и гостевую) зону, этакий "капитанский мостик", где дети будут чувствовать себя вполне комфортно, самостоятельно и автономно.
Назовем некоторые проекты двухуровневых загородных домов с наиболее удачной планировкой: "Нахабино" (107, 4 кв. Метров, дерево), "Подлипки" (178, 7 кв. Метров, дерево), "Загорье" (157, 7 кв. Метров, дерево), "Пушкино" (197, 3 кв. Метров, кирпич), "Дом Шале" (321, 5 кв. Метров, комбинированный.
Интересными, хорошо спланированными вариантами трехуровневых загородных домов являются проекты "Голицыно" (317, 5 кв. Метров, дерево), "Мытищи" (298, 7 кв. Метров, комбинированный.
Одноэтажные загородные дома также пользуются спросом. Одни из них тяготеют по стилю к скандинавской деревянной архитектуре, другие - к русским "Избушкам на Курьих Ножках". Являясь менее экономичными по расходу материала на квадратный метр полезной площади, они, тем не менее, допускают интересные архитектурные и планировочные решения.
Планировка одноэтажного загородного дома свои особенности имеет. Деление помещений на общественную и приватную зоны в одноэтажных домах производится не по вертикали, а по горизонтали. Можно разместить гостиную, кухню - столовую, комнату отдыха, гостевую, бильярдную в одном крыле дома, а спальни членов семьи, кабинет - в другом. Вполне возможно при этом установить два камина - по одному в каждом крыле. Другое планировочное решение: общественную зону поместить в центр здания, а жилые помещения разнести по краям.
Какие вопросы вам задаст архитектор?
Заказчик, обращаясь в строительную компанию, обычно имеет в голове (или на бумаге) некую планировку загородного дома, который он хочет построить. Задача архитектора - превратить данный план в техническое задание. Для этого он захочет узнать, сколько этажей будет в вашем доме, в том числе - мансардный? Сколько спален, на каких членов семьи? Сколько гостевых комнат? Сколько санузлов? Будут ли в доме открытые террасы, балконы? Хотите ли вы, чтобы в доме был двухсветный зал? Намерены ли вы объединить гостиную, столовую и кухню в единое пространство? Ли эркер нужен? Будет ли установлен камин? Будет ли кабинет, бильярдная и т. п.? Лишь в том случае, если дом двухэтажный, то где следует расположить лестницу: в гостиной, где она послужит одной из основных деталей интерьера, или в отдельном тамбуре? Хотите ли вы, чтобы в доме под одной крышей находились гараж, сауна, бассейн и т. п.?
Возможно, получив ответы на все эти вопросы, архитектор предложит ближайший к вашему плану типовой проект загородного дома с уже продуманной, проверенной планировкой. Этот проект всегда можно доработать с учетом ваших требований и пристрастий.
Варианты планировки домов.
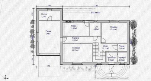
Планировка дома - часть проектной документации, в которой отображается расположение основных конструкций дома, перегородок, санузлов, окон и дверей. Среди дополнительной информации, для отображения которой используют план дома, можно выделить площадь помещений, размеры, материал стен, расстановка планировка комнат в двухэтажном домесантехнических устройств, привязка оси, а также отметки, к примеру, на лестничной клетке. В этой статье мы рассмотрим, как создается планировка плана дома, а также ее наиболее распространенные варианты.
Планировка дома.
Архитекторы тщательно изучают потребности людей, чтобы планировка дома была для них наиболее комфортной. В связи с этим существует два вида проектирования домов: создать вначале объем и затем его заполнить необходимыми помещениями или сначала расставить правильно помещения, а потом создать из них объемную модель дома - подготовка к разработке планировки дома. Планы домов разрабатываются на этапе проектирования - посмотреть, как разрабатывается планировка дома в специализированной программе. Довольно часто для дома необходимо несколько планов дома:
Цокольного этажа;.
Типового;.
Мансардного.
Они из-за особенностей расположения жилой площади различаются. К примеру, на мансардном этаже нет необходимости в устройстве всех капитальных стен. Кроме того, часть полезной площади будет утеряна из-за низкой высоты потолка возле ограждающих стен дома. Итак мы рассмотрим планы и планировки дома 6 х 6; 6 х 8; 6 х 9; 7 х 7; 8 х 8; 8 х 10; 10 х 10; 10 х 12; 12 х 12.
Можно также ориентироваться на конфигурацию дома, к примеру:
Планировка двухэтажного дома;.
Планировка дома с цокольным этажом;.
Планировка дома с мансардным этажом;.
Планировка дома с гаражом.
Составление этого чертежа также с учетом типоразмеров сборных элементов ведется. Такой расчет поможет уменьшить количество мест недобора фундаментных блоков, элементов перекрытия и др. Процесс начинается с вычерчивания осей дома и привязки стен к ним. После этого наносят перегородки, окна и двери - посмотреть урок вычерчивания дополнительных элементов на плане дома. Заключительным этапом становятся подписи помещений, их площади, а также нанесение размеров - обозначение на чертежах планировки дома. После строительства дома бти составляет поэтажные планы помещений для учета изменений, которые будут предпринимать собственники.
План дома, популярные планировки.
Неправильное проектирование приводит к необходимости осуществлять перепланировку - работу, связанную с изменением объемно-планировочного решения дома. Здание может иметь несколько больших комнат или всего 2. их число и площадь определяются габаритными размерами дома: 6 х 6; 6 х 8; 6 х 9; 7 х 7; 8 х 8; 8 х 10; 10 х 10; 10 х 12; 12 х 12.
Важно правильно скомпоновать полезную площадь здания. В процессе этой работы обращают внимание на два коэффициента, которые помогают оценить площадь, занятую коридорами и подсобными помещениями и сравнить ее с жилой.
Примеры планировок внутренних помещений домов.
Загородная недвижимость - прекрасная возможность реализовать все свои мечты, создав неповторимое, комфортное, уютное поместье для всей своей семьи. Каждый, кто начинает строительство собственного дома мечтает именно об этом. Для создания подходящей атмосферы необходима правильная внутренняя планировка частного дома, ведь именно от этого зависит благоустроенность и удобство всех домочадцев.
Как правило, планировка внутренних помещений постройки проводится еще при проектировании фундамента под разделительные и несущие перегородки. Такой подход поможет в будущем значительно сэкономить финансовые затраты на работе строительной бригады, плюс ко всему сократить время. Также учитывается и то, что дом строится не на один десяток лет, поэтому нужно учесть тот факт, что в будущем в нем, возможно, будет проживать не одна семья, а значит, он должен быть просторным и максимально удобным.
Правила планировки будущих комнат:
Дом должен иметь минимум три комнаты, для каждого члена семьи по комнате.
Спальни планируют закрытыми, не проходимого типа.
Двери со всех спален должны выходить в одно помещение - холл или гостиную.
Особого внимания при планировке стоит уделить кухне, так как при удачном проектировании в ней можно отвести место и для столовой. 9 м? - это оптимальный вариант кухонного помещения, который вместит в себя все самые необходимые атрибуты: мебель, холодильник, плита, вытяжка, полки и мн. др. Также стоит учесть приемлемую ширину кухни, которая считается 2, 5 м. при таких параметрах в такое помещение гармонично впишется не только вся кухонная атрибутика, но и бытовая техника, которая необходима для ежедневного пользования любой хозяйке.
Правила планировки дома по сторонам света. Расположение дома по сторонам света
Со стороны фасада, выходящего на север, а значит лишенного инсоляции, лучше разместить хозяйственные помещения, гараж, санузел или кухню. Данное условие можно соблюсти не всегда, ведь северный фасад может оказаться главным, и располагать данные помещения в его части не правильно, с точки зрения эстетики. Однако тут можно разместить общую комнату (гостиную), лестничную клетку, кабинет.

Южный и западный фасады наоборот подвержены активному влиянию солнца, особенно в летний период. Это не лучшее место для спален и кухни, в этих помещениях будет слишком жарко, но если иного предусмотреть не возможно, то на помощь придут разнообразные жалюзи, ролеты или козырьки. Спальни лучше спроектировать с восточной стороны дома.

Выбрав на просторах интернета проект понравившегося дома с приемлемой планировкой, обязательно адаптируйте его, привязав к конкретному участку, прежде чем заказать проект, что бы избежать в дальнейшем неприятностей.

Пример хорошо продуманного размещения дома на участке
Располагая жилой дом на участке, подумайте и об инсоляции территории в течение дня, чтобы не оказалось так, что большую часть светового дня она будет находиться в тени дома.
Попутно не забывайте учесть влияние преобладающего направления ветров в зимний период, чтобы местность на участке, куда будет надувать большую часть снега, хорошо прогревалась солнцем.
Тут же стоит упомянуть и о расположении вашего дома относительно домов соседей. В том случае, если ваш участок небольших размеров и окружен соседними участками, также стоит учесть этот фактор, чтобы тень от соседских домов большую часть времени не закрывала ваш двор.
В последнее время многие люди стали пользоваться знаниями науки фэн-шуй при обустройстве жилья, прилегающей к дому территории, сада, практикуемой китайцами на протяжении веков. Прежде всего, это наука о практических методах формирования жизненного пространства в гармонии с окружающим миром.
Тем, кто верит в это учение, важно соблюдать законы фэн-шуй. Но главное все же, на наш взгляд, отнестись к строительству дома с практичностью, сопоставить все за и против того или иного расположения и ориентации жилого дома для достижения наиболее благоприятных условий проживания.
Правила планировки участка загородного дома. Планировка дачного участка с уклоном
Получая место под дачную постройку на склоне, хозяин недоволен приобретением. Действительно, обустройство такой территории потребует больших затрат по времени и денежным средствам. Но результат будет стоить того. Потому что в этом случае получается уникальная территория, не имеющая аналогов.
Приведенные ниже советы помогут обустроить территорию:
- Лучшим дизайнерским решением в данном случае будет альпийский стиль. Основной акцент делается на всевозможные природные камни и валуны. Используются в дизайне яркие большие цветы.
- При формировании растительности на нижних частях территории высаживают высокие растения, на возвышенностях размещают низкорослые экземпляры.
- На территории не оставляют пустых участков без растительности. Это делается не только по эстетическим соображениям. Зеленая растительность будет защищать грунт от вымывания.
- Для безопасности движения лучше предусмотреть дорожки по равнинной местности и лестницы для перемещения по высоте. Удобно, когда ступеньки имеют все одинаковые размеры. Если их несколько, лучше предусмотреть перила.
- При планировании неровной поверхности необходимо спроектировать дренажную систему и укрепить склоны.
Планировка участка своими руками под силу не специалисту. Приведенные советы помогут правильно организовать работы. Планировка дачного участка поможет разместить все необходимые постройки, выполнить зонирование, определить наиболее удачное место под строительство дома. Возведенное на участке строение порадует не одно поколение своим уютом и комфортом.
Правила планировки дома по сторонам. Нормы и правила расположения построек на участке
Минимальное расстояние от дома до границы соседнего участка три метра. Гараж, мастерская, баня, сарай возводятся в метре от границы участка соседей. Уличный туалет располагается в любом месте, но не менее 10–15 метров от дома .
Это минимальные требования и желательно, чтобы соседский дом располагался тоже вдалеке от туалета, потому что неприятный запах навряд ли понравится любому соседу.
Деревья высотой до шести метров нужно сажать не более двух метров к забору , а деревья высотой более шести метров нужно сажать не менее четырёх метров от соседского забора, потому что соседям неприятно будет убирать листья от деревьев.
Застройка участка (площадь дома и вспомогательных построек) не должна превышать 25% от площади всего участка. При планировании построек на участке его прежде необходимо разделить на следующие зоны:
- Жилая зона.
- Зона отдыха.
- Огородно-садовая зона.
- Хозяйственная зона.
В жилой зоне будет расположен непосредственно сам дом или коттедж. В зоне отдыха будет располагаться место для релаксации после рабочего дня или площадка для активного отдыха, беседка для шашлыка, барбекю, декоративный водоём или бассейн, детская площадка и т. д.
В огородно-садовой зоне обычно располагается огород, фруктовые деревья и садовые кустарники. Здесь могут выращиваться различные цветы, декоративные деревья и кустарники или же просто обычные овощи.
Правила планировки дома из бруса. Планировка домов из бруса
Древесина, которая является материалом естественного природного происхождения, всегда привлекала людей своей экологической чистотой, красотой и надёжностью.
В настоящее время деревянный брус относится к категории лучших строительных материалов. Ровный материал, который крайне удобен в процессе сборки, способен в несколько раз сократить время, отведённое на возведение дома, а также существенно повысить качество работ.

Пример типовой планировки деревянного дома из бруса 6х9

Пример планировки одноэтажного дома из бруса размером 8×12
Создание проекта дома из бруса
При выборе наиболее подходящей планировки перед вами будет два варианта: типовые проекты и индивидуальные. Первые можно легко найти в специализированных печатных изданиях, онлайн-ресурсах, в каталогах строительных фирм. Если вам необходим, который не встретится больше ни у кого, тогда вам потребуется помощь профессионального проектировщика.

Оригинальный проект дома из бруса
Индивидуальные авторские проекты домов стоят немалых денег. К выбору архитектора следует подходить строго, так как только профессиональный специалист способен разработать действительно качественное надёжное жилище.

Правила планировки дома с мансардой. Правила проведения работ
Под планировкой в строительстве понимается разделение пространства на этапе строительства. Все последующие изменения относятся к перепланировке. Потому, чтобы избежать затратных по времени, силам и финансам корректировок, хорошая планировка частного дома должна начинаться на этапе закладки фундамента. Это необходимо для того, чтобы изначально заложить несущие стены и перегородки.
Если распределение пространства осуществляется самостоятельно, отличным подспорьем станут фото планировки дома из сети. Здесь можно найти несколько вариантов разделения строений конкретного типа.

Если к работе привлечен квалифицированный работник, его задачей станет совмещение пожеланий хозяев жилища и строительных норм. Конечным продуктом работы специалиста будет:
- подробная схема коммуникаций;
- чертежный проект.

Под коммуникациями понимаются инженерные сети, обеспечивающие жизнедеятельность обитателей жилища. Электрическая сеть, водоснабжение и канализационная система.

Чертеж должен четко учитывать размеры частного дома и соответствовать основным требованиям, предъявляемым к строительству жилых зданий.

Так, с учетом норм по объему чистого воздуха в комнате (23 м3), нужно с особой тщательностью обеспечить необходимый метраж, уровень проветривания. Источники естественного освещения также важны.

Правила планировки участка дома. Составление план-схемы
Теперь, имея данные о характере ландшафта и пользуясь методиками планирования и зонирования, необходимо составить план-схему. Последняя создаётся для наглядности всего проекта. Для этого можно обратиться к профессионалам, но рекомендуется делать план-схему самостоятельно.

Возьмите лист бумаги. Если необходимо, подрежьте его под необходимую форму. Затем сделайте из цветной бумаги все постройки, растения и другие элементы, которые вы хотите видеть на вашей схеме. При этом не забывайте учитывать приблизительный масштаб. Далее начинайте размещать объекты по плану, передвигайте их, компонуйте на ваш вкус.

На плане должно обязательно быть отражено:
- Расположение жилых помещений;
- Хозяйственные и вспомогательные постройки;
- Забор;
- Схемы коммуникаций и линий электропередач.

Схему можно сделать и из объёмных моделей. Последние склеивают из бумаги либо вылепляют из пластилина. Далее макеты размещают на плане и направляют на них свет. Благодаря этому можно определить, куда будут падать тени от объектов в солнечный день.

Если у вас возникли трудности с планом, рекомендуем обратиться на специализированные сайты. Там вы найдёте фотографии различных планировок участков и точные расчёты планов.