Превращение однокомнатной хрущевки в современную студию.
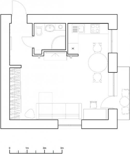
Правильная перепланировка может кардинально изменить квартиру. Из хрущевки - в современную студию. Не верите? Проект - доказательство этому - работа талантливых ребят из дизайн - бюро M2project. Они взяли типовую хрущёвку в московской пятиэтажке 1960 года. Не просто сделать из этого что-то легендарное, однако, для талантливых дизайнеров это не стало проблемой. Весь интерьер 1 комнатной квартиры разместился на открытом пространстве площадью 30 кв. м.

В квартире есть всё, что необходимо для жизни: кухня, столовая, рабочее место, гостиная зона/спальное место и ванная. Планировка 1 - комнатной хрущёвки позволила создать ощущение открытого пространства. Чистые серо - белые оттенки стен уравновешивают насыщенный колорит постеров, а картины ярких цветов создают радостное настроение. Интерьер дизайн декор.









Ещё читайте статьи о мебели для гостиной http://interior.ru-best.com/mebel/mebel-dlya-gostinoy