Дизайн интерьера однокомнатной квартиры - студии в Москве.
Дизайн интерьера однокомнатной квартиры - студии получился очень современным, светлым, в нем все соответствует сегодняшнему уровню комфорта: имеется большая кухня - гостиная, гардероб и отдельная спальня.
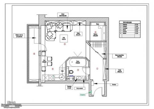
Планировка однокомнатной квартиры - студии.

Площадь квартиры - студии всего 38 квадратных метров. Для того, чтобы не потерять ни сантиметра, решили полностью убрать все перегородки, не несущие нагрузку. Не удалось снести только ригели - они как раз и выполняют функцию несущих стен. Ригель - это опорная балка, и в данном проекте однокомнатной квартиры - студии их наличие из минуса дизайнеры превратили в плюс - в интерьере появились дополнительные плоскости и грани.

Кухню и гостиную объединили в одном объеме, а спальню изолировали в нише. При перепланировке однокомнатной квартиры в студию одна из двух дверей, ведущих на лоджию, была демонтирована - та, что находится в зоне кухни. Проем заложили до высоты подоконника, в результате образовалось место для обеденной группы. Большое окно поток дневного света увеличило.

Стиль и цветовое решение студии.

Чтобы квартира - студия казалась просторнее и светлее, в качестве основного цвета выбрали светлые серые и бежевые тона. Перегородку трапециевидной формы выложили плиткой цвета коньяка - она контрастно выделяется на общем фоне. Той же плиткой выложили фартук в рабочей зоне кухни.

Травянисто-зеленое большое изголовье кровати служит цветовым акцентом в гостиной. Стиль интерьера однокомнатной квартиры - студии можно определить как смешанный. В нем сочетаются элементы скандинавского интерьера - светлые стены и мебель, а также пол, с элементами американской классики - тяжелые портьеры, насыщенные цветом детали. Niart дизайнинтерьера дизайнквартиры.





Подробнее читайте об интерьере для квартиры http://interior.ru-best.com/interer-dlya-kvartiry/interer-dlya-kvartiry