В Hotel de Paris открылся сьют имени грейс келли.
Новый люкс "Princess Grace" в отеле Hotel de Paris в Монте-карло стоимостью 30 евро в сутки.
Hotel de Paris - одно из любимых мест принцессы Грейс. Так, в 1956 году в отеле был организован ужин по случаю ее бракосочетания с принцем Ренье, а двадцать лет спустя знаменитая пара отмечала здесь годовщину свадьбы.
Интерьеры украсили любимые цветы принцессы Грейс, а террасу - чайные розы абрикосового цвета.

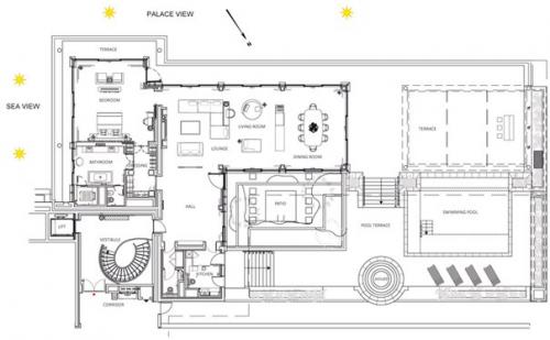
Нестандартно большой люкс площадью 910 м 2 на 2-х этажах, с изысканным и современным дизайном и впечатляющим экстерьером с видом на средиземное море на 180 градусов. В люксе "Принцесса Грейс" преобладают элегантные изогнутые формы, чистые линии, современный стиль, прозрачность и благородство материалов.
Люкс состоит из следующих помещений: 2 спальни, кабинет, гардеробная в прихожей с туалетом на каждом этаже и гардеробной в каждой спальне, 2 гостиные, жилая комната, столовая, кухня, ванная комната с ванной, душем - хаммамом и сауной и ванная комната с ванной и душем - хаммамом.

Также в люксе имеются частный лифт для перемещения между 2 этажами, бассейн - инфинити с противотоком для плавания и джакузи.







