Дом на берегу балтийского моря.
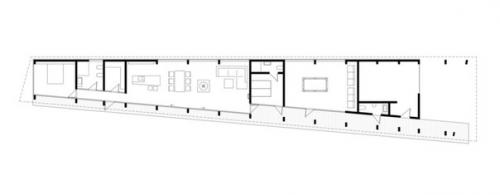
Студия Archispektras спроектировала частный дом в папе, Латвия. Резиденция Dune площадью 175 квадратных метров расположена на дюнах вблизи балтийского моря. Резкая и асимметричная конструкция сочетает в себе традиционную солому и элегантное стекло, выделяясь и при этом дополняя природное окружение с его плавными линиями. Вместе с тем дом отлично гармонирует с соседними постройками, несмотря на свой современный облик
. Созданный для отдыха семьи кайтсёрфера, он оснащён всеми удобствами и открывает панораму моря с бесконечным горизонтом. Гостиная, кухня и столовая объединены в одну зону. На втором уровне спроектирована комната отдыха, открытая к пространству внизу, что способствует социальному взаимодействию внутри дома. Спальни и ванные комнаты обособлены. Интерьер дома полон дерева и тепла. Немного грубый и мягкий одновременно, он дарит комфорт и хорошее настроение, заряжая на приятный отдых.









Читайте далее новости о мебели для кухни http://interior.ru-best.com/mebel/mebel-dlya-kuhni