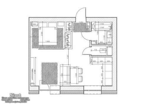
Дизайн студии 35 кв.
02.08.2016 в 22:29
м. со спальней в нише.
Дизайн студии 35 кв. м. создан для молодой семьи, которая хотела иметь светлый и функциональный интерьер с просторной гостиной и изолированной спальней.
Работа над проектом с перепланировки началась. Убрали стену, не несущую нагрузки, и получили студию, которую разделили на части: кухню с обеденной зоной, уютную гостиную и убранную в нишу спальню. Напротив спальни есть выход на балкон. Санузел при перепланировке квартиры - студии не перемещали
. Niart дизайнинтерьера дизайнквартиры.









Читайте далее информацию о мебели для кухни http://interior.ru-best.com/mebel/mebel-dlya-kuhni
Категории: Дизайн интерьера дома, Интерьер квартиры студии, Идеи дизайна спальни, Мебель для гостиной, Мебель для кухни, Интерьер для квартиры