Всё об интерьере для дома и квартиры

Лучшие идеи для дизайна интерьера, полезные советы, интересные статьи

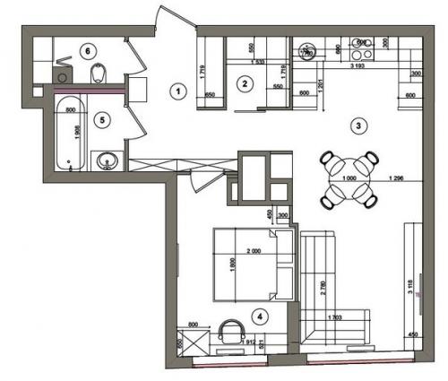
Дизайн интерьера двухкомнатной квартиры.

29.10.2016 в 23:54

Метраж: 55, 5 кв. м.
Комнаты: 2.
Санузел: 1 .
Высота потолков: 2, 76 метра.
Метраж по помещениям.
Прихожая: 9, 6 кв. м.
Гардеробная: 2, 6 кв. м.
Гостиная - кухня: 24, 5 кв. м.
Спальня: 11, 3 кв. м.
Ванная: 3, 3 кв. м.
Дизайн интерьера двухкомнатной квартиры.
Туалет: 2, 3 кв. м квартира@vk_Interior.

Дизайн интерьера двухкомнатной квартиры. 01
Дизайн интерьера двухкомнатной квартиры. 02
Дизайн интерьера двухкомнатной квартиры. 03
Дизайн интерьера двухкомнатной квартиры. 04
Дизайн интерьера двухкомнатной квартиры. 05
Дизайн интерьера двухкомнатной квартиры. 06
Дизайн интерьера двухкомнатной квартиры. 07
Дизайн интерьера двухкомнатной квартиры. 08
Дизайн интерьера двухкомнатной квартиры. 09

Подробнее читайте статьи о мебели для кухни http://interior.ru-best.com/mebel/mebel-dlya-kuhni