Часть 2. офис в Киеве от архитектурного бюро Form.
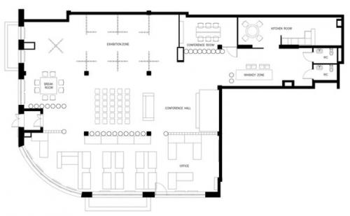
Архитектурное бюро Form представило проект офисного пространства hOt в Киеве. На площади 330 квадратных метров созданы три зоны: офисная часть для комфортной работы команды из 15 человек; центральная зона для проведения тренингов и мастер-классов; а также выставочное пространство для презентации продукции с белыми полупрозрачными кирпичными стенами.
Бюджетный подход при полном доверии заказчика ко всем идеям архитекторов обусловил выбор материалов. Весь интерьер выполнен в одном цветовом решении, что придаёт пространству целостность. Освещением акцентировали внимание на важных деталях и фактурах. Например, подсветив колонны, подчеркнули высоту помещения, а глубину придали за счёт чёрных штор, которые повесили почти вдоль всех фасадных стен.
Зону кухни - столовой и санузлов расположили в дальней части офиса. В реализации интерьера использовались достаточно простые материалы. Четырехметровые колонны из картонной опалубки в массе создали "Перегородки", разделив между собой офисную и центральную зоны. Их разбавили прозрачной стеной из кругов в чёрном цвете из той же опалубки, только меньшим диаметром.
В выставочной зоне с помощью прокрашенного в белый цвет пустотелого кирпича выстроили крестообразные демонстрационные стенды для продукции.
Переговорную решили отделить за счёт колонн из старых картонных бочек, которые обвернули гофра - картоном и подсветили сверху направленными лучами. Для изготовления мебели использовали фанеру и дерево. Например, стулья Voku в презентационной зоне Form бюро специально разрабатывали для этого пространства. Фотографии: Андрей безугловгаврилов Сергей.









Читайте далее статьи о мебели для кухни http://interior.ru-best.com/mebel/mebel-dlya-kuhni