Всего неделя прошла с замеров загородного дома, а у нас уже на 90% согласовано планировочное решение.
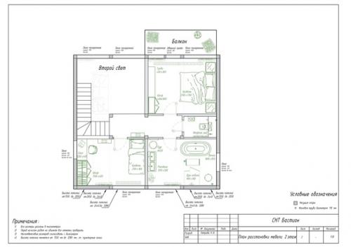
Дом двухэтажный, со вторым светом, в стиле Barnhouse, площадь этажей суммарно около 105 кв. м. предназначен для постоянного проживания семьи из трёх человек. Со стороны террасы и балкона панорамное остекление и красивый вид на высокие деревья. Стиль интерьера будет современный и минималистичный.
В прихожей мы предусмотрели гардеробную, где будет храниться обувь и верхняя одежда. Вход в котельную расположен под лестницей, высота потолка позволяет так сделать, дверь скорее всего будет скрытого монтажа. Так же под лестницей поместился рабочий стол с компьютером.
Мы рассматривали несколько вариантов кухни, П - образную, с островом, пока утвердили угловую. Остров на кухне - мечта многих хозяек, но решили что он может смотреться громоздко. Основным пожеланием заказчиков было сохранить пространство, свет, воздух в доме.
Второй этаж - мансардный, высота потолка меняется от 1550 до 3200 мм. Об этот нюанс я с непривычки "Спотыкалась", рисуя планировку, ведь в квартирах такого нет. А здесь, например, душевую кабину в угол не поставишь. В ванной комнате будет шикарная отдельностоящая ванна - мечта многих хозяек номер 2 трубы коммуникаций были выведены ещё когда заливали фундамент и сейчас существует определенная привязка к стоякам. А также к несущим опорам.
Мне кажется получилось отлично, но мысль о кухонном острове не покидает меня. Очень бы хотелось его реализовать, не в этом, так в следующем проекте.


