Всё об интерьере для дома и квартиры
Лучшие идеи для дизайна интерьера, полезные советы, интересные статьи
Main menu
Главная
Интерьер для дома
Интерьер для квартиры
Идеи дизайна
Мебель
Главная
»
Интерьер для квартиры
»
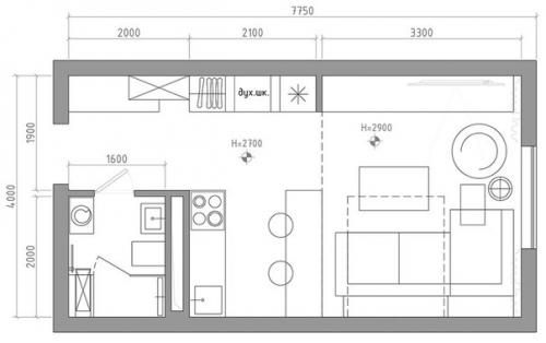
Проект квартиры - студии в новостройке на юге Москвы, общей площадью 29 м 2 без балкона.
Проект квартиры - студии в новостройке на юге Москвы, общей площадью 29 м 2 без балкона.
08.01.2016 в 19:54
Интерьер для квартиры
Стояла задача создать современный лаконичный интерьер для сдачи квартиры внаем
.
Категории:
Интерьер для квартиры
,
Интерьер квартиры студии
,
Современный интерьер квартиры
Понравилось? Поделитесь с друзьями!
⇦
Бежевый - самый нейтральный, самый природный и натуральный цвет из всей многогранной палитры декора и дизайна.
⇨
Апартаменты в Берлине от Vitra и Freunde von Freunden.