Всё об интерьере для дома и квартиры
Лучшие идеи для дизайна интерьера, полезные советы, интересные статьи
Main menu
Главная
Интерьер для дома
Интерьер для квартиры
Идеи дизайна
Мебель
Главная
»
Интерьер для квартиры
»
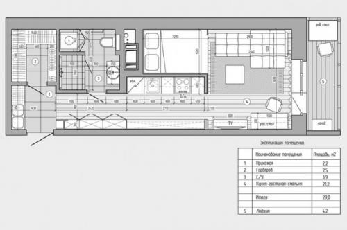
Интересно обыграли дизайн квартиры - студии, 30 кв.
Интересно обыграли дизайн квартиры - студии, 30 кв.
22.10.2019 в 18:54
Интерьер для квартиры
м
.
Категории:
Дизайн интерьера дома
,
Интерьер для квартиры
,
Интерьер квартиры студии
Понравилось? Поделитесь с друзьями!
⇦
Функции острова на кухне.
⇨
Наш ремонт. Углoвaя oднoкoмнaтнaя хрyщёвка с бaлкoнoм и колонкой на кухне.