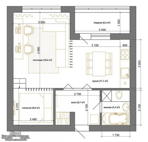
Интерьер однокомнатной квартиры - студии 42 кв.
м.
Основной сложностью при создании проекта однокомнатной квартиры - студии стало изменение изначально неудобной планировки: небольшая комната была сильно вытянута в длину. В результате грамотного подхода дизайнеров вместо типовой "Однушки" хозяева получили современное жилье, в котором есть все необходимые им функциональные зоны: кухня, гостиная, место для работы и отдельная спальная зона.

Чтобы и без того небольшое пространство квартиры не казалось еще меньше, зонирование осуществили перегородками из деревянных планок, внешне похожих на жалюзи. Они пропускают свет и в то же время разделяя общую площадь на обособленные части. В этом интерьере использованы отделочные материалы, характерные для эко - стиля. Прежде всего, это большое количество дерева, поверхность которого не закрыта краской, а также натуральный камень. Натуральные материалы придают обстановке естественность и приближают к природе. Niart дизайнинтерьера дизайнквартиры.









Подробнее читайте статьи об интерьере деревянных домов http://interior.ru-best.com/interer-dlya-doma/interer-derevyannyh-domov