Всё об интерьере для дома и квартиры

Лучшие идеи для дизайна интерьера, полезные советы, интересные статьи

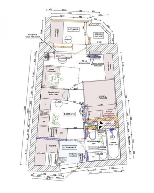
Интерьер квартиры - студии 24, 5 кв.

23.09.2020 в 18:54

м (+ лоджия) в московской области. Кухню перенесли к другой стене (трубы с уклоном в полу), на ее месте обустроили спальное место. Дизайнер дина удальцова
Интерьер квартиры - студии 24, 5 кв..

Интерьер квартиры - студии 24, 5 кв. 01
Интерьер квартиры - студии 24, 5 кв. 02
Интерьер квартиры - студии 24, 5 кв. 03
Интерьер квартиры - студии 24, 5 кв. 04
Интерьер квартиры - студии 24, 5 кв. 05
Интерьер квартиры - студии 24, 5 кв. 06
Интерьер квартиры - студии 24, 5 кв. 07
Интерьер квартиры - студии 24, 5 кв. 08
Интерьер квартиры - студии 24, 5 кв. 09