Дизайн проект апартамента в ЖК Tribeca Appartments от архитектора Александра михайлика.
Заказчики - зрелая пара, уважающие традиционные стили в интерьере, но без тяги к излишествам в декоре. Стиль, на котором мы остановились можно назвать современной классикой.
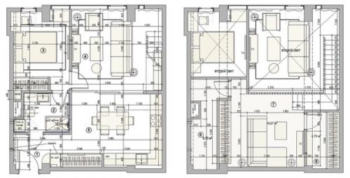
Первоначально помещение представляло из себя квадратное в плане пространство с высокими потолками и одним огромным окном. Нам удалось найти планировочное решение, учитывающее все пожелания: большую кухню с возможностью объединения с залом, светлую спальню, санузел с отдельным входом для гостей
. Было решено организовать дополнительное лёгкое перекрытие, на котором разместилась зона отдыха, техническое помещение и кладовая. Больше работ на www. Loft145. com.









Читайте далее информацию об интерьере зала в квартире http://interior.ru-best.com/interer-dlya-kvartiry/interer-zala-v-kvartire