Главная
» Мебель
» Сканди, лофт, бохо и эко: яркая однушка с потрясающим миксом стилей и продуманной планировкой.
Сканди, лофт, бохо и эко: яркая однушка с потрясающим миксом стилей и продуманной планировкой.
23.01.2020 в 14:54
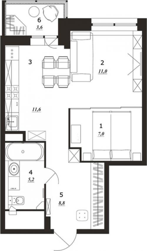
Владелица квартиры - молодая женщина, яркая и энергичная, которая любит танцы и путешествия. Она хотела получить неординарный и индивидуальный интерьер, но при этом эргономичный и практичный - и с точки зрения планировки, и в отделке, и в мебели. В однокомнатной квартире предстояло спроектировать изолированную спальню, объединенную кухню - гостиную и предусмотреть вместительные места для хранения.

В основу интерьера лег серый и его оттенки, он стал одним из связующих цветов - во всей квартире так или иначе используется серая палитра. В прихожей серый разбавили коричневыми оттенками, а в гостиной добавили яркости с помощью акцентного дивана и аксессуаров. Активную теплую гамму охлаждает бирюзовый оттенок.

Листай карусель (планировка в конце).






Категории: Стили интерьеров квартир, Интерьер для квартиры, Интерьер однокомнатной квартиры, Идеи дизайна спальни, Мебель для кухни, Мебель для гостиной, Идеи дизайна прихожей, Мебель диваны