Перепланировка апартаментов в Португалии.
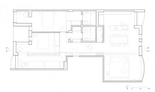
Проектная студия Merooficina оформила интерьер апартаментов Forte в городе вила -ду- конди, Португалия. Пространство площадью 120 квадратных метров расположено в жилом доме постройки середины 90-х годов в быстрорастущем районе. Резиденция отличалась странной планировкой, при которой спальня выходила на оживлённую улицу с морским пейзажем, в то время как гостиная и кухня довольствовались видом на тихий задний двор. Разумеется, первым делом нужно было "Перевернуть" комнаты в апартаментах
. Центральная ось новой планировки расположением ванных комнат и определяется постbрочной. Они оформлены с помощью фанеры, выделяясь на фоне прочих белых стен. При этом складные двери можно открывать или закрывать, управляя пространством. Такое планировочное решение также позволило увеличить количество спален. Также удалось наполнить комнаты светом и более тесно связать апартаменты с океаном. Ведь именно для этого владельцы резиденции её и любят, приезжая отдыхать сюда на все праздники и выходные дни.








