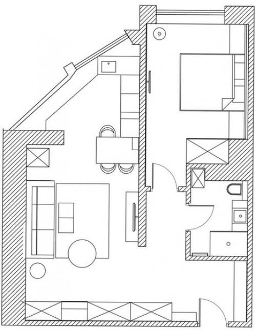
Квартира холостяка. Интерьер создан для молодого мужчины, увлекающегося экстремальными видами спорта.
Так как хозяин квартиры ведет активный образ жизни и занимается спортом, первоочередной задачей стала разработка систем хранения, в которой можно было бы спрятать немалое количество спортивного снаряжения и одежды для вейк - бординга. В связи с этим появился большой многофункциональный шкаф, объединяющий прихожую и гостиную зоны, а также гардероб в спальне для личных вещей.
Кухня оснащена мебелью сложной ассиметричной формы с фасадами под высветленный дуб и каменной столешницей.

Спальня в спокойной серой цветовой гамме получила максимально лаконичное оформление, где главным элементом является кровать, парящая в воздухе.
В компактном санузле пол выполнен из натурального дерева, а одна из стен - зеркальная, благодаря чему он зрительно кажется просторней.

Smashdesign_Interior@Smashdesign.








Больше информационных статей о мебели для кухни http://interior.ru-best.com/mebel/mebel-dlya-kuhni