Всё об интерьере для дома и квартиры

Лучшие идеи для дизайна интерьера, полезные советы, интересные статьи

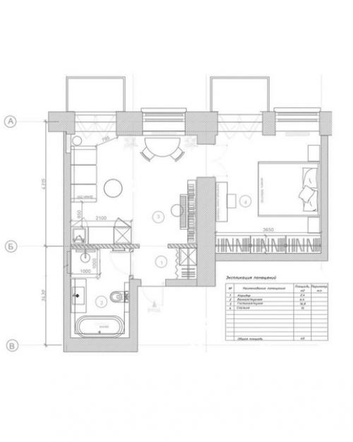
Интерьер 1-комнатной квартиры 40 кв.

20.02.2023 в 17:29

м в доме начала 20 века в центре Москвы. Кухня - гостиная + спальня. Кухонная техника за фасадами спрятана. Дизайнеры Ольга Седова и Прохор Машуков (студия Only Design, TG: Onlydesign_Interior
Интерьер 1-комнатной квартиры 40 кв..

Интерьер 1-комнатной квартиры 40 кв. 01
Интерьер 1-комнатной квартиры 40 кв. 02
Интерьер 1-комнатной квартиры 40 кв. 03
Интерьер 1-комнатной квартиры 40 кв. 04
Интерьер 1-комнатной квартиры 40 кв. 05
Интерьер 1-комнатной квартиры 40 кв. 06
Интерьер 1-комнатной квартиры 40 кв. 07
Интерьер 1-комнатной квартиры 40 кв. 08
Интерьер 1-комнатной квартиры 40 кв. 09