Дом M в Словении.
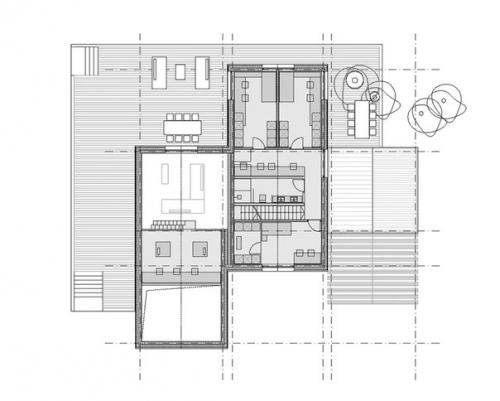
Дом M, созданный студией Sono Arhitekti, стоит на участке с типичным для Словении природным окружением и является примером очень комфортного современного жилья, построенного с узнаваемыми традиционными архитектурными элементами. Он состоит из трёх прямоугольных объёмов общей площадью 290 квадратных метров, каждый из которых венчается двускатной крышей и облицован тёмно-коричневым деревом и светлыми панелями из волокнистого цемента
. Это сочетание тёмного и светлого покрытий замечательно перекликается с берёзами, растущими рядом с домом. В центральной части первого этажа расположены объединённые столовая и кухня с остеклёнными стенами, так что из этой зоны можно любоваться лугами, холмами и лесами. Рядом находится гостиная с великолепной чёрной лестницей, ведущей наверх. Второй этаж отведён под детские спальни, ванную комнату и гардеробные. В целом этот интерьер с белыми стенами решён в мягких оттенках, в нём много тёплых деревянных элементов, создающих уютную атмосферу в доме, хотя значительная часть объектов при этом выполнена в жёстких геометрических формах.









Далее читайте новости о мебели для ванной комнаты http://interior.ru-best.com/mebel/mebel-dlya-vannoy-komnaty