Всё об интерьере для дома и квартиры

Лучшие идеи для дизайна интерьера, полезные советы, интересные статьи

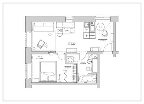
Дизайн квартиры 45, 6 кв.

26.10.2024 в 11:29

м в ЖК савеловский сити в Москве. Кухня - гостиная (19, 5 кв. м) + спальня с гардеробной (13, 1 кв. м) + прихожая - кабинет (7, 6 кв. м. интерьер в духе русского авангарда.
Архитекторы Петр григораш и Дарья Блаженкова (TG: Petr_Grigorash_Design.
Фотограф Евгений кулибаба.
Стилист кришталева Людмила.
Дизайн квартиры 45, 6 кв.
Больше фото +.

Дизайн квартиры 45, 6 кв. 01
Дизайн квартиры 45, 6 кв. 02
Дизайн квартиры 45, 6 кв. 03
Дизайн квартиры 45, 6 кв. 04
Дизайн квартиры 45, 6 кв. 05
Дизайн квартиры 45, 6 кв. 06
Дизайн квартиры 45, 6 кв. 07
Дизайн квартиры 45, 6 кв. 08
Дизайн квартиры 45, 6 кв. 09