Дизайн кухни 18 кв. Основные правила оформления
- Дизайн кухни 18 кв. Основные правила оформления
- Кухня-гостиная 18 кв м план. Кухня-гостиная 18 кв. м: дизайн, фото удачных интерьеров студии на 18 квадратов
- Дизайн кухни 18 кв.м с балконом. Виды планировки в кухне 18 кв м
- Дизайн кухня-гостиная 18 кв м с одним окном. 20 идей для кухни-гостиной 18 кв м
- Дизайн 18 метровой кухни. Дизайн кухни площадью 18 кв. метров
- Дизайн кухни 18 кв м с барной стойкой и большим обеденным столом на 6 человек
Дизайн кухни 18 кв. Основные правила оформления
Кухня 18-19 кв. м считается типовой: данного метража вполне достаточно для воплощения разных вариантов дизайна. По желанию ее можно соединить с соседней комнатой, расширив пространство, сделав его перспективу уникальной, а планировку – открытой.
И в этом плане проект может начинаться с получения одобрения по совмещению.
Если хозяин жилища решил соединить кухню с лоджией, он должен знать: нельзя сносить стеновую перегородку полностью. Допускается частичный снос, при котором боковые участки стены остаются. Если же их сносят, необходимо обеспечить поддержку путем стеклянных дверей либо иных конструкций. Кроме того, при совмещении кухни с балконом либо лоджией нельзя переносить радиаторы на стену с окном. Придется утеплять стены и пол, устанавливать стеклопакет в целях снижения теплопотерь.
При обдумывании дизайна необходимо учесть ряд ключевых требований.
- Оформление начинается с составления проекта. Он наглядно укажет, как лучше расставить мебель с учетом функциональности кухни, как провести коммуникации.
- Важно продумать зонирование пространства. Это позволит разделить помещение на отдельные функциональные зоны с четкой организацией интерьерной композиции.
- Необходимо правильно организовать освещение, чтобы комната казалась максимально уютной и комфортной.
- Важно продумать материал настенной, потолочной и напольной облицовки с учетом практичности и стойкости к истиранию, влаге, впитыванию запахов.
- Мебель подбирают с учетом ее расположения по правилу рабочего треугольника. Это повысит удобство при готовке пищи и уборке рабочей зоны.
- Оформление комнаты должно подчиняться стилистике, взятой за основу во всем жилище. Какой стиль в других комнатах – тот и должен быть в кухне.
- Все функциональные зоны оформляют в едином стиле, одинаковой цветовой гамме с учетом общей гармонии элементов меблировки.
- При обустройстве оставляют место для свободного перемещения: ничто не должно препятствовать комфорту домочадцев.
- Текстиль для окон и мебели подбирают с учетом практичности, простоты стирки (чистки). Его форма и размеры должны быть эстетичными и практичными.
- Стиль помещения должен нравиться всем домочадцам, как и его цветовое воплощение. Если тона подобраны неверно, это делает атмосферу некомфортной.
- Все составляющие дизайна (от мебели до материала облицовки) подбираются в примерном статусе. Дешевые элементы на уровне дорогих снижают статус интерьера.
Кухня-гостиная 18 кв м план. Кухня-гостиная 18 кв. м: дизайн, фото удачных интерьеров студии на 18 квадратов
Совмещение двух небольших комнат иногда является единственной возможностью улучшить жилищные условия в малогабаритной квартире. В кухне-гостиной 18 квадратов дизайн может быть самым разнообразным: от простого лаконичного до роскошного и величественного. Как самостоятельно разработать проект помещения, чтобы оно было функциональным, красивым и соответствовало пожеланиям и требованиям всех домочадцев?
Соединение кухни и гостиной в одно общее пространство преследует цель увеличения полезной площади, на которой можно обустроить светлую и просторную комнату
Первые шаги
В современных квартирах-студиях жильцам предлагается самостоятельно выбрать планировку квартиры. Первоначально обычно дается просторное помещение с минимальным количеством перегородок, которые при желании можно самостоятельно установить при помощи гипсокартона. Что касается жителей квартир старой постройки (с комнатами на небольшое количество квадратов), то здесь возникают определенные сложности.
Проблемы связаны с тем, что не всегда удается получить разрешение в вышестоящих инстанциях на перепланировку помещения. Это касается безопасности жильцов всего дома, поскольку демонтаж несущей стены может повлечь за собой печальные последствия в виде обвала или обрушения. Именно поэтому самовольный ремонт карается штрафом и предписанием вернуть интерьер в исходное состояние. В кухнях, оборудованных газовой плитой, категорически запрещается совмещение со смежной комнатой.
18 квадратов – шикарный метраж для реализации авторских идей
Если вы все же решились на столь серьезный шаг, следует предусмотреть и другие нюансы, касающиеся перепланировки. Во-первых, запах из кухни непременно будет проникать в гостиную. Для устранения проблемы необходимо будет приобрести мощную вытяжку, поскольку централизованная система вентиляции не справится с такой задачей. Во-вторых, шум бытовых приборов и разговоры на кухне будут мешать человеку, который захочет отдохнуть или поработать в гостиной. Особенно остро стоит этот вопрос в больших семьях, где не у каждого домочадца есть личное пространство. Кроме того, жир, запахи и копоть будут впитываться мебелью и шторами, поэтому убирать придется гораздо чаще, чтобы кухня не выглядела неопрятно.
Отделить два помещения друг от друга можно с помощью раздвижных дверей
Рекомендации по планировке
Какая планировка кухни-студии 18 кв. м будет наиболее удачной? Интерьер кухни-гостиной 18 кв. м напрямую зависит от того, на какой зоне надо акцентировать внимание: на рабочей или гостиной.
Рассмотрим основные варианты планировки.
- Г-образное расположение гарнитура (вдоль двух перпендикулярных стен) на кухне-гостиной встречается довольно часто. Такая планировка позволяет сохранить так называемый принцип треугольника (плита – мойка – холодильник) и эргономично использовать пространство. Для гостевой зоны остается достаточно места, сюда можно поставить диван, стенку, установить плазменный телевизор, стереосистему. В таком интерьере себя будет комфортно чувствовать и большая семья, и один взрослый работающий человек.
- П-образная планировка акцентирует основное внимание на рабочей зоне, поэтому кухонный гарнитур занимает много места. Мебель располагается вдоль трех стен с захватом двух углов. Для обеденной части подобного интерьера подойдут большой обеденный стол, мягкий уголок и диваны.
- Островная планировка обычно сочетается с прямым гарнитуром. Многофункциональный блок часто бывает оснащен бытовой техникой, мойкой, однако перенос коммуникаций следует предварительно согласовать в специальных государственных учреждениях. Такой блок является одновременно рабочей поверхностью и местом для приема пищи. Габариты острова варьируются в зависимости от площади помещения. Для кухонь-гостиных 18 метров больше подойдет вариант острова – барной стойки с несколькими посадочными местами и дополнительными отделениями для хранения посуды.
- Прямолинейная планировка подразумевает размещение бытовой техники в один ряд. В таком случае остается много квадратов для обустройства гостиной. В интерьере с таким расположением гарнитура будут хорошо смотреться диван-трансформер, большой стол, стенка.
Дизайн кухни 18 кв.м с балконом. Виды планировки в кухне 18 кв м
Есть много интересных идей для планировки кухни и в каждом варианте есть как плюсы, так и минусы. Все зависит от самого помещения: квадратное, прямоугольное или совмещенное с гостиной. Так что рассматриваем варианты, а после выбираем подходящий мотив.


Студия
Владельцам большой столовой, которая совмещена с залом, необходимо разделить помещение по зонам. Такое решение поможет комфортно перемещаться. Подробнее про примеры зонирования:
- перегородка между кухней и комнатой - разделить эти два помещения можно как обычной мебелью, так и декоративной конструкцией;
- разделите помещение так, чтобы можно было установить обеденный стол и он не мешал в комнате и не был лишним на кухне.
С зонированием мы разобрались, давайте перейдем к другим рекомендациями.
- Установите мощную вытяжку, так как у вас помещение совмещено с залом и все запахи с кухни могут впитаться в шторы или другие ткани.
- Откажитесь от островного гарнитура, иначе вам будет тесно в такой планировке.
- Если вы не планируете регулярно обедать за полноценным столом - откажитесь от него в пользу угловой барной стойки, которая будет одновременно служить перегородкой. Но на всякий случай купите раскладной столик и стулья, они могут вам пригодиться, если к вам придут гости.
- Дизайн кухни 18 кв. м необходимо выполнить в тандеме с общим стилем квартиры.


Г-образная
Г-образная планировка имеет много преимуществ: угол кухни можно продлить через подоконник или использовать его как перегородку между залом. Советы для такой планировки:
- используйте правило рабочего треугольника: мойка, варочная поверхность и холодильник должны находиться с минимальным расстоянием друг от друга (1 метр);
- не забывайте про угол, так как в нем можно встроить не только полки, но и плиту или посудомоечную машину;
- г-образная кухня подойдет для квартир студий или для маленькой столовой зоны.
Учтите, что если вы проводите мало времени на кухне, то лучше воздержитесь от этого варианта и установите обычный линейный гарнитур.





Параллельная
В этом случае кухонная зона делиться на два ряда: левый ряд используют для встраиваемой техники, а правый служит как рабочая зона. Зачастую такую планировку используют для прямоугольных помещений, а особенно ее любят, если столовая совмещенная с балконом. Но если у вас квадратная кухня 18 кв. м, в дизайн этого помещения можно свободно установить полноценный обеденный стол посередине комнаты.



П-образная
Достаточно популярное решение для планировки большой квадратной кухни. В основном такой дизайн используют фанаты кулинарии, так как в п-образном гарнитуре можно встроить очень много техники. Плюс, если у вас квартира студия, то такая расстановка мебели будет служить перегородкой между комнатой.


Дизайн кухня-гостиная 18 кв м с одним окном. 20 идей для кухни-гостиной 18 кв м

Объединение кухни и гостиной в последние несколько лет стало распространенной тенденцией, во многом благодаря моде на американские интерьеры. Хотя такое решение может иметь и просто чисто практические преимущества:
- расширение пространства. Например, в домах советской застройки (хрущевки, брежневки) площадь кухни может составляет всего около 4-5 кв.м. При этом стена, разделяющая гостиную и кухню может не являться несущей. Тогда есть возможность узаконить по всем правилам такую перепланировку. Объединенное пространство является куда более свободным и комфортным для времяпрепровождения;

Объединенная кухня и гостиная в хрущевке в классическом стиле
- удобство. В просторном помещении с большим столом и диваном можно устраивать посиделки с близкими, при этом всегда под рукой находится всё необходимое для сервировки и угощения. А для семьи с маленькими детьми единое помещение удобно ‑ ребенок всегда будет под присмотром;

- необычное оформление. Дизайн может быть выполнен практически в любом стиле. На такой площади можно реализовать больше разных решений. Например, можно сделать барную стойку, декоративную перегородку, подиум, островной гарнитур.


Необычное оформление с П-образным гарнитуром
В ответ на спрос на малометражное бюджетное жильё многие застройщики стали предлагать студии с площадью помещения 18 кв. Если в этом случае грамотно подойти к вопросу оптимизации пространства, то можно вполне уместить здесь удобный диван со спальным местом компактную, но функциональную кухню, а также мебель для хранения.


6 советов по обустройству
Обустройство совмещённой кухни с гостиной имеет свои особенности, которые необходимо учитывать. Вот несколько полезных рекомендаций по дизайну и организации большого пространства.
1. Выполните зонирование
Разделить зоны можно с помощью реальной перегородки или с помощью чисто визуальных эффектов – выбора разных цветов, материалов, определенной расстановки мебели.
Вот несколько возможных вариантов зонирования.
- Перегородка: реечная, из гипсокартона.



- Барная стойка. Ее можно сделать продолжением гарнитура или отдельно стоящей. Если семья небольшая, то барная стойка может одновременно служить обеденной зоной.
- Отделка разными материалами, использование различных фактур. Например, можно сочетать штукатурку и кирпичную кладку, отделку деревянными панелям с окрашенными стенами и т.д. Будет стильно смотреться современный вариант отделки стен в зоне гостиной, например, под бетон или камень холодного оттенка, под дерево.

- Определенная расстановка мебели – как способ зонирования. Откажитесь от стандартного, привычного размещения мебели вдоль стен и получите действительно необычное оформление. Довольно часто в дизайн-проектах можно встретить расположение дивана спинкой к рабочей зоне кухни.

- Разная цветовая гамма. Выбирая, например, разного цвета обои, помните, что они должны сочетаться между собой, например, по оттенку или по правилам расположения в цветовом круге.

- Декоративные детали.
Ковёр, модульные картины, другие предметы интерьера, призванные создавать уют, могут визуально отделить гостиную.

Дизайн 18 метровой кухни. Дизайн кухни площадью 18 кв. метров

На кухне площадью 18 кв. метров возможно практически все – нестандартная планировка, использование темных или ярких цветов, организация вместительной столовой и рабочей зоны, размещение барной стойки, острова или дивана. Как не упустить все возможности большого пространства, но при этом и не перегрузить его? Предлагаем изучить вопрос дизайна кухни 18 кв. м на 6 реальных примерах интерьеров с разными планировками.
Угловая кухня с буфетом и большим столом
Г-образная планировка универсальна, компактна и удобна. Если вы хотите создать пространство, которое вместит и функциональную рабочую зону, и вместительную столовую зону (либо дополнительные удобства вродеили), то, скорее всего,станет лучшим выбором. Так, например, в этой Г-образной кухне площадью 18,2 кв. м (на фото ниже) хозяева разместили стол на 4-6 персон и буфет.
Советы:
- Угловой гарнитур будет удобен в том случае, если плита, холодильник и мойка размещены по принципу «рабочего треугольника», а не в одной линии. При этом важно, чтобы они находились в разумной близости друг от друга (на расстоянии не более 1 м). Заметьте, что в представленном примере кухни, холодильник стоит далеко от плиты и мойки (в углу у дверного проема), что не очень удобно.
- Чтобы задействовать угол с пользой, в него можно встроить плиту или мойку. Правда, угловой напольный модуль, в этом случае, должен иметь трапециевидную форму.
Линейная кухня с полуостровом
Сама по себе прямая кухонная линия очень не удобна в эксплуатации, ведь во время готовки приходится часто перемещаться вдоль нее, а значит терять время и силы понапрасну. Однако линейную планировку можно сделать удобной и очень функциональной, если дополнить ее. Особенно хорош будет остров/полуостров, оснащенный мойкой или плитой, как в следующем примере дизайна кухни 18 кв. метров.
На следующих фото можно рассмотреть столовую зону с кладовкой-купе.
Советы:
- Полуостров по сравнению с островом занимает меньше места, так как одним торцом упирается в стену.
- Чтобы не усложнять ремонт кухни, полуостров можно оставить без техники и сантехники. Таким образом, он будет выполнять функцию рабочего стола и барной стойки.
- Помните, что между гарнитуром и полуостровом/островом должен оставаться проход шириной 1-1,5 м. Если проход будет шире 1,2 м, готовить станет неудобно, а если меньше 1 м – станет сложно открывать нижние ящики мебели. Оптимальная ширина прохода составляет 1,2 м.

Прямоугольная кухня с параллельной планировкой
Если ваша кухня узкая или имеет прямоугольную вытянутую форму, то вы можете выстроить гарнитур в два параллельных ряда. Обеденная зона в этом случае выносится в глубину помещения (для узкой кухни) или размещается между рядами (для прямоугольной и квадратной кухни). Далее на фото представлен пример дизайна прямоугольной 18-метровой кухни, в которой столовая зона на 6 человек размещена в центре комнаты.
Советы:
- При размещении гарнитура у дверного проема, для экономии пространства распашную дверь следует заменить на раздвижную или вовсе отказаться от нее. Есть и другой вариант – поставить дверь, открывающуюся в сторону прихожей, а не кухни.
- Как на кухне с параллельной планировкой лучше разместить «рабочие» точки? Плиту, мойку, посудомоечную/стиральную машину и место для подготовки продуктов лучше всего расставить в одном ряду, а все остальное (холодильник, духовку, СВЧ-печь и пр.) – в другом. Кстати, есть и другой вариант, подходящий для, когда два ряда выполняют разные функции. Например, один ряд может быть исключительно «рабочим», а второй использоваться только как буфет или гостиная «стенка».


П-образная кухня с полуостровом
П-образная кухня очень удобна для готовки, ведь позволяет совершать все работы, стоя практически на одном месте. Правда, она достаточно громоздка и занимает много места, так что на 18 квадратах останется пространство только для не слишком большой столовой зоны. Впрочем, если одной из боковин буквы «П» будет полуостров, то у вас получится организовать за его столешницей и барную стойку. Ниже представлен дизайн-проект кухни с именно такой планировкой.

План полуостровной кухни

Советы:
- Чтобы П-образный гарнитур не загромождал пространство, одну-две его части, например, боковины, можно.
- Помните, что расстояние между боковинами гарнитура должно составлять не менее 1 метра.
- П-образная кухня с полуостровом отлично подходит для совмещенных кухонь-гостиных и, так как полуостров зонирует единое пространство.
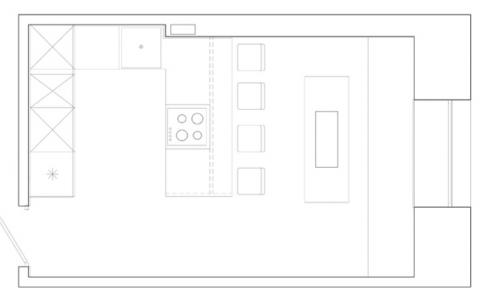
Дизайн кухни 18 кв м с барной стойкой и большим обеденным столом на 6 человек
- Цена гарнитура: 1400$
- Площадь: —
- Планировка: П-образная
- Цвет мебели: Серая, под дерево
- Фасады: МДФ
- Стиль: Современный
- Объединение: С гостиной
- Сделано в: ВМ Кухни, https://vk.com/vmkuhni, Казань
- Пол: Керамогранит
- Фартук: Плитка
- Потолок: Гипсокартон / Натяжной
Ваш репост изменит интернет :)
Обеденная зона в частном доме задумывалась с элементами «легкого» лофта — плитка под кирпич, массивные ножки стола из металла. Цвет кухонного гарнитура выбирали так, чтобы соответствовал отделке. Остановились на темном графите для нижних шкафов и светлом тоне для верхних шкафов (чтобы сделать их менее мрачными). От глянца отказались для упрощения дальнейшего ухода. Форма гарнитура — П-образная — позволила отделить зону готовки от столовой. Но при грамотном расположении мебели сделать это можно и.


Материал для фасада выбран МДФ в пластике, обладающий лучшими эксплуатационными характеристиками по сравнению с пленкой, но более бюджетный по сравнению с акриловым покрытием.

Бюджет был ограничен, поэтому выбрана была недорогая фурнитура GRAND. За 4 года эксплуатации нареканий эта фурнитура не вызвала.

Исключение сделали для часто используемого шкафа для сушки посуды, где установили дорогую, но очень продуманную и прочную фурнитуру BLUM.
В «мокрой» зоне разместили раковину и. Под раковиной разместились система фильтров, контейнер под мусор и чистящие средства.
Вытяжку взяли встраиваемую телескопическую, достаточно мощную, так что проблема распространения запахов за пределы кухни отсутствует. Гофру от вытяжки закрыли в шкафчик, который используется для хранения кулинарных и других домовых книг.
Вся техника была выбрала либо в черном цвете, либо металлик. Варочная панель — газовая, а духовой шкаф — уже привычный для хозяйки электрический с автоматическими программами и прочими преимуществами.
Очень удобны ящики для организации хранения крупной посуды — сковородок и кастрюль.
Барная стойка будет использоваться для быстрых завтраков.
Для обеденной зоны был изготовлен большой на 6-8 персон стол из массива дерева, залитого эпоксидной смолой. Оказалось, смола плавится под воздействием горячих кружек и тарелок, оставались следы. Чтобы отказаться от постоянного использования салфеток-подставок, положили закаленное стекло.
Световых режимов много — комфортно и готовить, и пить в тишине вечером чай с приглушенным светом.