Апартаменты на побережье в Португалии.
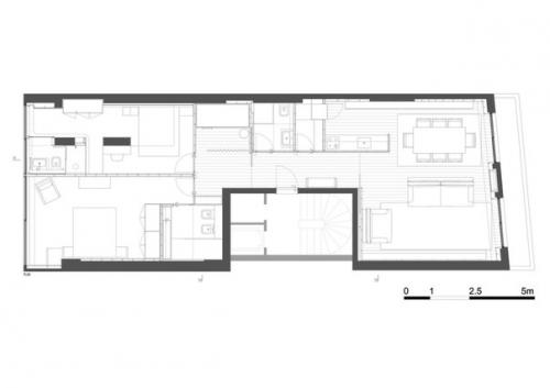
Интерьер апартаментов в португальском городе повуа - ди - варзин - это результат работы архитектурного бюро Pitagoras Group. Резиденция площадью 95 квадратных метра расположена на побережье и используется исключительно для сезонного проживания. Обновлённая планировка апартаментов представлена просторной гостиной и кухней, двумя спальнями, в одной из которых установлена двухъярусная кровать, а также кладовой и гостевым санузлом
. Главным аспектом в работе над проектом стал панорамный вид, который важно было не затмить чрезмерно насыщенным декором. Именно поэтому архитекторы выбрали дерево в качестве доминирующего материала отделки, благодаря чему интерьер выглядит однородным.









Подробнее читайте информацию о мебели для гостиной http://interior.ru-best.com/mebel/mebel-dlya-gostinoy