30, 3 м 2 студия.
* реализованный проект.
Екатерина Проскурина, KPD Design.
Drawkat.
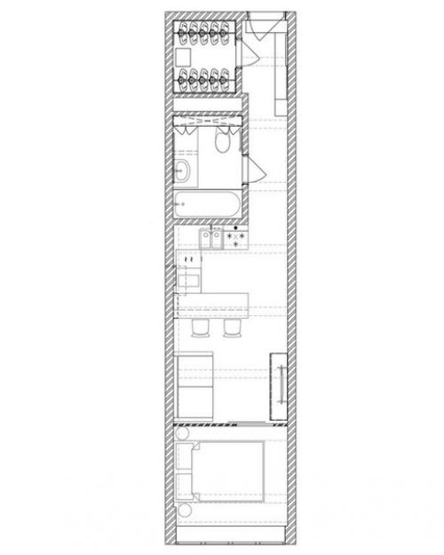
"Узкая студия 31 кв. м. в здании склада типографии "Красная Звезда".
Неиспользуемые здания типографии переделали в апартаменты. В одном из таких находится и эта студия. Апартаменты активной женщине принадлежат. Она любит принимать в гостях подруг, маленькую внучку, которая может остаться с ночевкой
. Поэтому на небольшой площади ей требовалось оформить достаточно много функциональных зон: удобную кухню, места для отдыха, сна. По эстетике и комфорту хозяйка хотела иметь аналог номера в хорошем отеле. После обновления здания застройщик студию с отделкой сдавал. По планировке это помещение вытянутое, с единственным окном. При входе расположена отдельная гардеробная - кладовая, затем по коридору ванная и комната, совмещенная с кухней. В перепланировке не было смысла. У окна только отделили спальню, выбрав для зонирования раздвижную стеклянную перегородку. Ставить глухие стены не хотели, чтобы сохранить естественный свет в мини - гостиной и кухне. Цветовая палитра этого интерьера состоит из необычных насыщенных цветов: розово - фиолетового, зеленого, желтого, песочного и оранжевого. Бросается в глаза цвет аметиста - сиренево - розовый, а приятный бежево - серый цвет служит базой. В студию вписали максимум необходимой мебели. Наличие гардеробной позволило освободить пространство от шкафов. В прихожей сделали открытую вешалку, добавили зеркало и металлическую полку для мелочей. "Больше ракурсов в комментариях.







