Всё об интерьере для дома и квартиры

Лучшие идеи для дизайна интерьера, полезные советы, интересные статьи

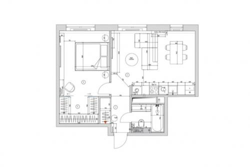
Проект однокомнатной квартиры 48 кв.

23.06.2024 в 00:31

м в ЖК Селигер сити в Москве.
Кухня - гостиная + спальня с гардеробной. Интерьер в стиле джапанди.
Дизайн студии 4room (VK: 4room. Studio.
Продолжение в комментариях +
Проект однокомнатной квартиры 48 кв..

Проект однокомнатной квартиры 48 кв. 01
Проект однокомнатной квартиры 48 кв. 02
Проект однокомнатной квартиры 48 кв. 03
Проект однокомнатной квартиры 48 кв. 04
Проект однокомнатной квартиры 48 кв. 05
Проект однокомнатной квартиры 48 кв. 06
Проект однокомнатной квартиры 48 кв. 07
Проект однокомнатной квартиры 48 кв. 08
Проект однокомнатной квартиры 48 кв. 09