Всё об интерьере для дома и квартиры

Лучшие идеи для дизайна интерьера, полезные советы, интересные статьи

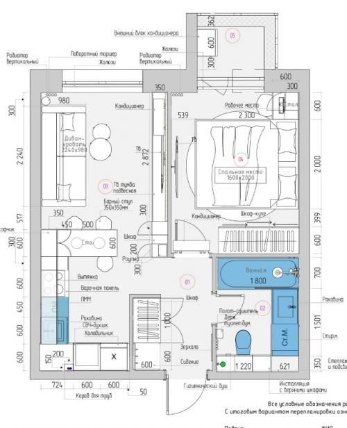
Проект однокомнатной квартиры 36 м 2 в центре Санкт-петербурга.

22.11.2025 в 17:29

Кухня - гостиная + спальня с рабочим местом. Жилье для молодого мужчины. Интерьер в стиле современного минимализма с элементами брутальности.
Автор Инна Родионова, студия FN Studio (VK: Designfns
Проект однокомнатной квартиры 36 м 2 в центре Санкт-петербурга..

Проект однокомнатной квартиры 36 м 2 в центре Санкт-петербурга. 01
Проект однокомнатной квартиры 36 м 2 в центре Санкт-петербурга. 02
Проект однокомнатной квартиры 36 м 2 в центре Санкт-петербурга. 03
Проект однокомнатной квартиры 36 м 2 в центре Санкт-петербурга. 04
Проект однокомнатной квартиры 36 м 2 в центре Санкт-петербурга. 05
Проект однокомнатной квартиры 36 м 2 в центре Санкт-петербурга. 06
Проект однокомнатной квартиры 36 м 2 в центре Санкт-петербурга. 07
Проект однокомнатной квартиры 36 м 2 в центре Санкт-петербурга. 08
Проект однокомнатной квартиры 36 м 2 в центре Санкт-петербурга. 09