Всё об интерьере для дома и квартиры

Лучшие идеи для дизайна интерьера, полезные советы, интересные статьи

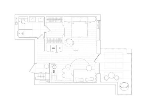
Проект квартиры - студии 40 кв.

25.07.2024 в 00:55

м (+ балкон) для девушки - инструктора по йоге. Интерьер с балийскими и японскими мотивами. Благодаря откидной кровати, в дневное время в комнате освобождается место для занятий и медитаций.
Дизайнер Анастасия заграй (Behance: Zagrai.
Проект квартиры - студии 40 кв.
Продолжение в комментариях +.

Проект квартиры - студии 40 кв. 01
Проект квартиры - студии 40 кв. 02
Проект квартиры - студии 40 кв. 03
Проект квартиры - студии 40 кв. 04
Проект квартиры - студии 40 кв. 05
Проект квартиры - студии 40 кв. 06
Проект квартиры - студии 40 кв. 07
Проект квартиры - студии 40 кв. 08
Проект квартиры - студии 40 кв. 09