Всё об интерьере для дома и квартиры
Лучшие идеи для дизайна интерьера, полезные советы, интересные статьи
Main menu
Главная
Интерьер для дома
Интерьер для квартиры
Идеи дизайна
Мебель
Главная
»
Интерьер для квартиры
»
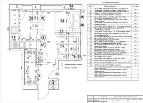
Маленькая квартира - студия, общей площадью 30 м 2.
Маленькая квартира - студия, общей площадью 30 м 2.
22.09.2018 в 10:54
Интерьер для квартиры
Высота потолков 2. 90.
Оцените проект интерьера от нашей подписчицы
.
Категории:
Интерьер маленькой квартиры
,
Интерьер для квартиры
,
Интерьер квартиры студии
Понравилось? Поделитесь с друзьями!
⇦
Стильный лофт с террасой на крыше в Германии ч. 1.
⇨
Сладкие букетики с конфетками в велосипедиках.