"Квартира для Души".
Комфортабельный интерьер с особой атмосферой.
Автор: Ахтямова лилия.
Площадь: 36, 2 кв. м.
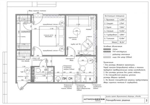
Заказчица эту небольшую двухкомнатную квартиру в тихом районе города приобрела. Квартира находится в старом фонде, поэтому исходная планировка совсем не соответствовала современным понятиям о комфортном жилье: в прихожей отсутствие места для хранения верхней одежды, маленькая кухня, проходные комнаты.
Встала необходимость перепланировки. Моей основной задачей было: выделить изолированную спальню (обязательно с гардеробной), найти место для шкафа в прихожей и в целом, добавить воздуха и обьема в небольшие помещения.
Под спальню решено было отдать самую большую комнату с выходом на балкон. Изолировали ее от соседнего помещения, заложив проем между комнатами. Так же я сместила вход в спальню (изначально вход в комнату был напротив входной двери) и таким образом, внутри комнаты получилась ниша, которую мы отдали под гардероб, а со стороны прихожей появилось место для встроенного шкафа!
Вход в гостиную сделали из кухни, что более логично. Между гостиной и кухней от пола до потолка установили стеклянную распашную перегородку. Яркая, графичная она привлекает внимание и стирает границы комнат, объединяя их воедино. Очень выигрышно в данном интерьере смотрится акцентный фартук из крупноформатного керамогранита. Активная текстура мрамора придает динамичность, а глянцевая поверхность лоск и презентабельность.
У меня получилось создать интересный интерьер, отвечающий всем требованиям современного жилья. А особую атмосферу и шарм придает декор, гармонично подобранный под заданное настроение! Лучшийдизайнеркрыма лучшийдизайнеркрыма 2025.







