Как выжать максимум из 28 квадратов.
Дизайнер создала воздушный интерьер с максимально функциональной начинкой. На 28 квадратах студии гармонично разместились спальное место, кухня с барной стойкой и открытый балкон с системами хранения.

Молодая пара купила компактную студию в Сочи, чтобы иногда приезжать на выходные - кататься на сноубордах зимой и купаться в теплом море летом. Интерьер получился лаконичным, но функциональным. Дизайнер Олеся Пархоменко оставила здесь максимум свободного пространства и тщательно продумала системы хранения: для спортивного снаряжения и личных вещей. О том, как максимально оптимизировать небольшую площадь однушки, Inmyroom рассказала автор проекта.

Общая информация.
Место: Сочи, центральный район.
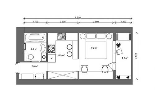
Метраж: 28, 3 квадратного метра.
Комната: 1.
Санузел: 1.
Высота потолков: 2, 7 метра.
Бюджет: 1 млн рублей.

Дизайнер.
Олеся Пархоменко - дизайнер. В 2012 году окончила ульяновский государственный университет по специальности "Искусство Интерьера". Дизайнер занимается частной практикой и руководит собственной студией Сustom Design.

Заказчики и пожелания.
Владельцы студии - молодая пара 27 и 25 лет. Ребята любят активно проводить время: много путешествуют и катаются на сноубордах. Спортивное хобби сыграло решающую роль в покупке квартиры в Сочи - у заказчиков появилась возможность быть ближе к горам и чаще бывать на склонах. Мне предстояло создать для них легкий интерьер, располагающий к отдыху: оставить максимум свободного пространства и обустроить балкон с прекрасным видом на море.

Перепланировка.
Ребят полностью устраивала планировка квартиры, поэтому мы не стали ничего менять. В компактной студии единственная комната - спальня и кухня одновременно. Также есть объединенный санузел и балкон площадью 4, 2 квадратного метра.

Отделка.
Из практических соображений для каждой зоны разные напольные покрытия выбраны. В прихожей, кухне и санузле появилась яркая плитка, в спальной зоне мы сделали наливной пол, а на балконе положили керамогранит под состаренное дерево. Чтобы визуально объединить помещения, я использовала в отделке стен один материал - декоративную штукатурку под кирпич, и установила подвесной потолок. Для оформления санузла я выбрала бюджетные материалы - внизу стены обшиты вагонкой, покрытой влагозащитным лаком, а сверху оставлены под покраску.

Хранение.
Несмотря на то что заказчики не будут жить в квартире постоянно, систем хранения здесь много. В прихожей появился вместительный шкаф - купе, а на входе разместилась отреставрированная консоль, где можно оставлять мелочь и обувь. Также на балконе предусмотрена скамья с ящиками и полка для аксессуаров. При проектировании кухонного гарнитура мы отказались от верхнего яруса шкафов в пользу открытых полок, а холодильник встроили в нижние модули. В санузле под раковиной установили компактный шкаф: за одной его дверцей спряталась стиральная машина, а за другой - бытовая химия.

Свет.
В студии предусмотрено несколько сценариев освещения. Главный источник света - лаконичная люстра над спальной зоной. У кровати разместился рабочий стол с вмонтированным светильником и компактной настольной лампой. А на балконе сделать вечера ярче помогут два симметричных бра над скамьей. Рабочая поверхность в кухне освещается накладными светильниками, а барная стойка - подвесами в стиле лофт. Еще один яркий акцент в студии - светильник с головой дракона. Он гармонично сочетается с консолью. В санузле кроме основного верхнего света я установила подсветку у зеркала и декоративный свет над раковиной.

Цвет.
Преобладающий цвет в интерьере - белый. Он визуально расширяет пространство и добавляет ему воздуха. Яркие акценты - предметы в сине - желтой гамме: так, настроение с порога задает входная дверь горчичного цвета. Палитру поддерживает стол с разноцветными ящиками и прикроватный светильник.

Мебель.
Мы выбирали мебель по принципу "Практично и Фунционально". Кухонный гарнитур, шкаф - купе, рабочий стол, скамья на балконе - все модели выполнены на заказ, что позволило максимально задействовать каждый сантиметр. Также нам удалось вписать в интерьер личную мебель ребят - два венских стула и отреставрированную консоль. Некоторой брутальности обстановке добавляют барные стулья у стойки.
Декор и текстиль.
Декоративных элементов немного, но они создают праздничное настроение и освежают интерьер. Настенные часы, светильники и постеры гармонично сочетаются между собой за счет единого стиля и гаммы. Что касается текстиля, то мы намеренно отказались от ковров и плотных штор - хотелось впустить в квартиру больше света и воздуха. Для покрывал, декоративных подушек и занавесей использовали натуральные ткани - хлопок и лен.
Стиль.
В интерьере два стиля тесно переплетаются между собой. С одной стороны - скандинавский, для которого характерны натуральные отделочные материалы, сочные акценты в цветовой гамме и обилие солнечного света. С другой, чувствуется присутствие лофта - прежде всего, в кирпичной кладке стен, брутальных барных стульях и подвесах над стойкой.
Сроки.
Мы уже начали работу над реализацией проекта и планируем уложиться в 2 месяца.
Советы читателям.
Старайтесь не загромождать малогабаритные квартиры мебелью - используйте только необходимое: компактные системы хранения, кровать, кухонный гарнитур. Не бойтесь белого цвета в отделке - он добавляет воздуха и визуально расширяет пространство. В том случае, если вы хотите сделать ремонт бюджетно, миксуйте модели известных коллекций с более доступными предметами интерьера. Чтобы в небольших квартирах макисмально задействовать каждый сантиметр, отдайте предпочтение мебели на заказ. Статья? Хотите почитать больше про дизайн - нажмите на этот тэг дизайн@podryad4ik.