Джунгли посреди города - яркий проект от студии NB art.
Однокомнатная квартира, 20 м.
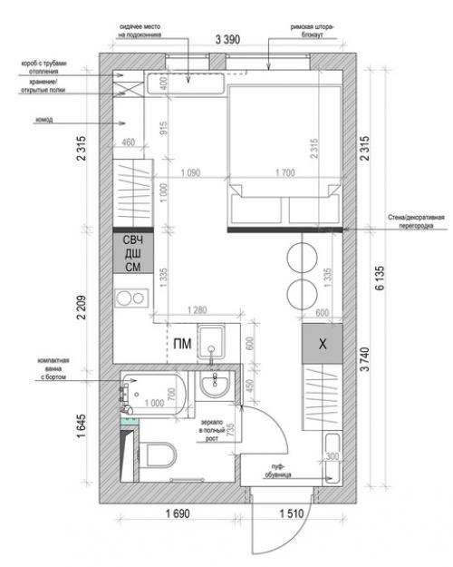
"Необходимо было задействовать каждый уголок с максимальной функциональностью, и постараться уместить все на 20 м по пожеланиям заказчика так, чтобы оставалось и свободное пространство.
В итоге мы организовали пространство квартиры следующим образом:
- из прихожей попадаем в зону кухни с барной стойкой;.
- общее пространство квартиры зонировали легкой перегородкой из стеклоблоков, отделив тем самым зону спальни;.
- кровать на подиуме переходит в уютное сидячее место на подоконнике.
- в компактном санузле важным пожеланием заказчика было разместить ванну, хотя бы самую небольшую, что нам также удалось сделать.
В интерьере использовали яркие насыщенные цвета в сочетании с более спокойной текстурой дерева, "Разбавляя" все большим количеством зеленых растений. В кухонных фасадах и встроенной мебели сочетали насыщенный изумрудный с темно - красным.
В зоне спальни, а также в ванной комнате - акцентные обои с растительным принтом. Для спальни предложили необычную отделку потолка: терракотовая краска и стеновая панель под дерево, продолжающая зону подоконника.








