Дизайн однокомнатной квартиры 40 кв.
М - лучшие фото и проекты на 2016.
40 кв. м. - такова средняя площадь однокомнатных квартир в большинстве современных многоэтажек. В отличие от хрущевок, площадь которых составляет 28-32 кв. м, эти "Однушки" предлагают больше разнообразия в планировке и дизайне пространства, и даже открывают возможность обустроить 2 отдельные комнаты - спальню и гостиную или общий зал и детскую.

В этой статье вы узнаете, что дизайн однокомнатной квартиры 40 кв м может быть очень комфортным, свободным и вызывающим восхищение, если правильно к нему подойти. Мы представляем вам 15 проектов и вариантов дизайна квартир размером 40 кв. м., сочетающих в себе уют, стиль и умную планировку!

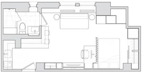
1. красивый дизайн квартиры студии 40 кв м - фото и план жилища.

Владелица этих апартаментов пожелала, чтобы дизайн её квартиры был чистым, простым, элегантным и вневременным. Как вы считаете: удалось ли дизайнеру достичь этого?

Чтобы интерьер выглядел просторнее, все отдельные зоны этой квартиры были непосредственно связаны друг с другом. Кухня объединена с гостиной, в ванную ведет прозрачная дверь, а спальня отгорожена от гостиной полуоткрытой перегородкой в виде вертикальных жалюзи. И вот вместо нескольких маленьких комнатушек получилось одно, но очень свободное и стильное помещение!

Среди других важных элементов дизайна этой квартиры 40 кв м стоит отметить светлую цветовую палитру и отсутствие массивных подвесных светильников, которые "Воруют" воздух у интерьера. Обратите внимание, что встроенные точечные светильники по периметру потолка гостиной как бы отделяют эту зону от остальных областей квартиры.

2. дизайн квартиры 40 кв м - фото и 3D проект.

Следующая стильная квартира площадью 40 кв м находится во Львове и была разработана дизайнерами романом вербищуком, Юлианной вербой и любовью лазорив. Как видно на фото, кухня здесь намного больше и удобней, чем в предыдущем варианте. А диван и кровать, несмотря на то, что стоят почти впритык, разделяются прозрачной стеклянной перегородкой.

В результате дизайн квартиры выглядит открытым и воздушным, а стильная плитка на кухне и в ванной приносит в нее интересную изюминку.

