Всё об интерьере для дома и квартиры

Лучшие идеи для дизайна интерьера, полезные советы, интересные статьи

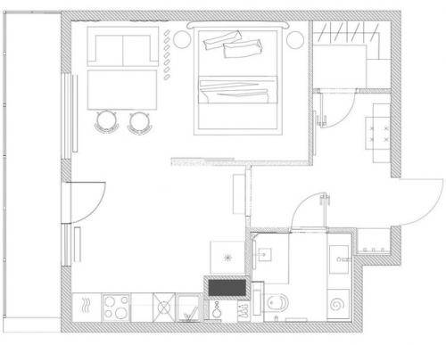
Дизайн квартиры - студии площадью 35 кв.

22.07.2023 в 00:31

м в Санкт-петербурге выполнен в малахитовых, серых и деревянных тонах.
Интерьер стал очень уютным и функциональным благодаря использованию различных цветов и текстур, а также зонированию пространства
Дизайн квартиры - студии площадью 35 кв..

Дизайн квартиры - студии площадью 35 кв. 01
Дизайн квартиры - студии площадью 35 кв. 02
Дизайн квартиры - студии площадью 35 кв. 03
Дизайн квартиры - студии площадью 35 кв. 04
Дизайн квартиры - студии площадью 35 кв. 05
Дизайн квартиры - студии площадью 35 кв. 06
Дизайн квартиры - студии площадью 35 кв. 07
Дизайн квартиры - студии площадью 35 кв. 08
Дизайн квартиры - студии площадью 35 кв. 09