Всё об интерьере для дома и квартиры

Лучшие идеи для дизайна интерьера, полезные советы, интересные статьи

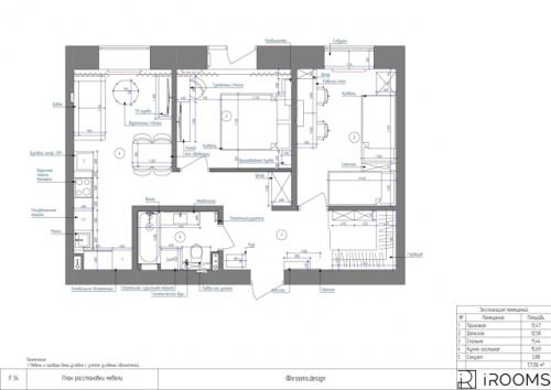
Дизайн двухкомнатной квартиры 57 кв.

07.06.2025 в 12:54

м в Красноярске для семьи из 4 человек:

Мы провели небольшую перепланировку - объединили кухню с постирочной, чтобы создать просторную и функциональную кухню - гостиную. Светлые современные оттенки наполнили интерьер воздухом и светом, а зеркала в прихожей визуально расширили пространство. Получилось уютно, стильно и очень удобно для жизни всей семьи!

Кухня - гостиная - 15, 6 кв. м.
Прихожая - 13, 4 кв. м.

Дизайн двухкомнатной квартиры 57 кв.
Дизайнер - Антон.

Дизайн двухкомнатной квартиры 57 кв. 01
Дизайн двухкомнатной квартиры 57 кв. 02
Дизайн двухкомнатной квартиры 57 кв. 03
Дизайн двухкомнатной квартиры 57 кв. 04
Дизайн двухкомнатной квартиры 57 кв. 05
Дизайн двухкомнатной квартиры 57 кв. 06
Дизайн двухкомнатной квартиры 57 кв. 07
Дизайн двухкомнатной квартиры 57 кв. 08
Дизайн двухкомнатной квартиры 57 кв. 09