Мы делаем барную стойку своими руками.
Барная стойка своими руками - это стильный и необычный элемент для кухни, дачи или любой из комнат в вашем доме.
Барная конструкция - незаменимый атрибут любого кафе или бара - в квартирах или доме выглядит не менее впечатляюще.
Кроме того, это - хорошая возможность разграничить пространство комнаты, чтобы, например, отделить обеденную зону от жилой или место для готовки - от обеденной зоны.

Также это дополнительное пространство для готовки или сервировки стола: если к вам приходит много гостей, то такой элемент станет отличным дополнительным местом для их размещения.

Материалы и внешний вид конструкции.

Барная стойка своими руками для дома может быть создана из самых разных материалов и выглядеть совершенно по-разному.

Прежде чем приступать к ее созданию, посмотрите фото барных стоек и выберите вариант, который вы хотели бы воплотить в своем доме.

В начале работы над объектом вам не нужно изобретать велосипед: существует несколько распространенных вариантов конструкции барных стоек, и вы можете воспользоваться одним из них, выбрав по фото тот, который вам больше нравится.

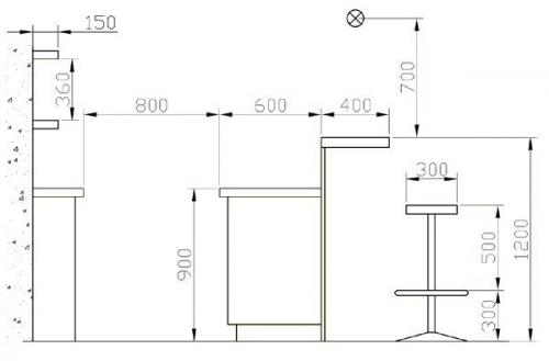
Классический и самый популярный вариант барной стойки - отдельный элемент с барными креслами.

В этом случае конструкция фиксируется с помощью консолей, а ее рабочая поверхность находится на уровне примерно 1-1. 2 м над уровнем пола.

Такую стойку обставляют специальными стульями на подставке - их также можно сделать самостоятельно.

Другой популярный вариант - когда барная столешница является продолжением обеденного стола.
В этом случае высота конструкции составляет не более 0. 9 см и обставляют ее обычными стульями - барные кресла сюда не подойдут.
Бывают барные стойки, имеющие двухуровневую рабочую поверхность.
Такие выгодны в случае, если в помещении не так много места: верхний уровень предназначен для расположения в гостиной, а нижний является продолжением кухни.
Еще одна возможность: размещение стойки по центру для разграничения кухни и обеденной зоны.
Иногда она оборудована местом для хранения посуды или других принадлежностей кухни - это может выглядеть, как обычный шкафчик.
Подобная конструкция барной стойки довольно удобна и позволяет сэкономить место.
Изготавливаются барные стойки обычно из дерева и металла - из первого материала делают столешницы, из второго - опоры.
Самый бюджетный вариант барной стойки - из поддонов. Материал для этой конструкции вам с радостью отдадут на любом складе или в строительном магазине.
Такая конструкция может быть какого угодно размера - все зависит от количества поддонов, которое вы раздобудете.
Вот что вам понадобится, чтобы возведение классической барной стойки стало реально: бруски из дерева (ширина 5 см), доска (2. 5 см), древесноволокнистая плита или лист из гипсокартона, молдинг для отделки потолка, шурупы и гвозди, шпатлевка для дерева, краска и герметики, декоративные отделочные материалы.
Этапы сооружения барной стойки.
До начала работы вам нужно сделать чертеж помещения дома, где вы планируете размещать барную стойку - кухни или гостиной.
Это нужно, чтобы конструкция не получилась слишком большой или слишком маленькой, и органично вписывалась в интерьер вашей квартиры.
Барная конструкция может быть смоделирована в специальной проектировочной программе.
В отличие от обычного чертежа на бумаге, здесь вы сможете "Покрутить" ее, пробуя все возможные варианты расположения, а также увидеть ее фотореалистичное изображение - оно даст большую наглядность и понимание того, как эта конструкция будет выглядеть в конечном итоге.
Обычный чертеж на миллиметровой бумаге не дает такого эффекта, однако с его помощью вы также создадите правильную и вполне рабочую конструкцию, поэтому использование программы - опционный, а не обязательный этап при создании барной стойки.
Следующим этапом после чертежа следует создание каркаса. Здесь вам пригодятся бруски из дерева - они являются основной каркаса.
Но при укладке между ними нужно оставлять припуски - там разместятся ваши декоративные элементы (устанавливаются последним этапом отделки.
Бруски друг с другом с помощью уголков или шурупов скрепляются.
Внимание! Только в том случае, если вы хотите сделать стойку, которая будет крепиться к другим предметам мебели: например, к разделочному или обеденному столу на кухне, то количество деревянных каркасных брусков следует уменьшить, ведь у вас будет дополнительная точка опоры.
В качестве крепежей применяются гвозди (они должны быть в 1. 5 раза больше, чем каркасные бруски.
Когда каркас готов, его нужно состыковать с нужными вам объектами. Рама барной стойки фиксируется к выбранному объекту с помощью шурупов и дюбелей или болтов.
Чтобы поверхность вашей будущей барной стойки была ровной, конструкция подгоняется по уровню с помощью регулируемых ножек.
Также можно использовать бруски из дерева, которые размещаются на нужной части каркаса.
Теперь изготавливается облицовка каркаса. Для этой процедуры подготовленный ранее лист гипсокартона или используйте ДВП.
На этом этапе вы можете создать дополнительные отсеки в вашей стойке, например, место для хранения кухонных принадлежностей.
Одновременно могут быть смонтированы полки и элементы для освещения. Таким образом, если вы делаете барную стойку с подсветкой, то необходимо заранее сделать отверстие для электро - кабеля (для удобства эксплуатации.
Рабочее покрытие барной стойки - это самая обыкновенная столешница.
Делать ее своими руками не нужно - лучше посетить точку, где торгуют строительно - отделочными материалами и приобретите готовый вариант там.
Лишь в том случае, если ваша барная конструкция будет располагаться на даче или в бане - подойдет и более "Грубый" вариант столешницы, сделанный из предварительно обработанных обрезанных досок, скрепленных с каркасом стойки с помощью обыкновенных гвоздей.
Когда рама будет зафиксирована, в свободном пространстве элементов каркаса появятся щели - их нужно обработать герметиком для дерева так, чтобы поверхность стала полностью герметичной.
После герметика щели нужно обработать шпатлевкой, и после этого сверху накладывается листовая обшивка. Особое внимание обратите на стыки конструкции - они зачищаются шкуркой.
Не приступайте к окраске, пока не добьетесь идеальной ровной и гладкой поверхности по всей площади конструкции, иначе, покрасив объект, исправить погрешности будет уже невозможно.
После окраски или оклейки (иногда барные стойки не красят, а оклеивают самоклеящейся пленкой) можно приступать к этапу отделки: установить точечные светильники на боковых поверхностях конструкции.
Чтобы сделать стойку из поддонов, нужно закрыть досками пустые пространства, а затем соединить элементы между собой с помощью обычных гвоздей.
Не забудьте предварительно обработать доски поддонов, чтобы не загнать в руки занозы во время работы и эксплуатации.
Когда конструкция собрана, ее, как и предыдущий вариант, покрывают краской и украшают декоративными элементами: можно нарисовать или выжечь на ней рисунки, застелить столешницу тканью или придумать другие варианты.
Такой вариант барной стойки не очень хорош для дома, но будет отлично смотреться на летней кухне - такая конструкция сделает ее похожей на кафе.
Таким образом, если ее разместить на даче, то такую стойку можно установить прямо на улице.
Возможно, прослужит она не так уж и долго, но на следующий сезон вы сможете сделать новую - работа над ней не отнимет много времени и сил.
Декорирование барной стойки - не менее интересное занятие, чем ее создание. Классическое украшение - это освещение, его располагают на верхних или боковых частях стойки.
Кроме того, барные стойки украшают рисунками, разукрашивают в разные цвета или встраивают какие-либо дополнительные элементы.
Вариантов отделки очень много, можете посмотреть несколько фото с дизайном барных стоек, прежде чем приступать к работе над своей собственной. Как сделать барную стойку для своего дома самостоятельно - популярный запрос среди тех, кто любит мастерить мебель. Как видите, в этом нет ничего сложного.