Всё об интерьере для дома и квартиры
Лучшие идеи для дизайна интерьера, полезные советы, интересные статьи
Main menu
Главная
Интерьер для дома
Интерьер для квартиры
Идеи дизайна
Мебель
Главная
»
Интерьер для дома
»
Как вам такой спокойній дизайн с яркими акцентами?
Как вам такой спокойній дизайн с яркими акцентами?
11.06.2020 в 13:54
Интерьер для дома
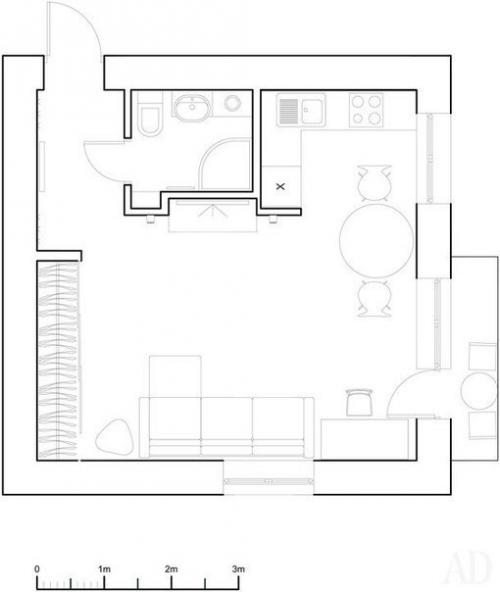
Однокомнатная хрущевка
.
Категории:
Дизайн интерьера дома
,
Интерьер однокомнатной квартиры
Понравилось? Поделитесь с друзьями!
⇦
Размещать всю необходимую декоративную косметику, а также электрические приборы для укладки в ванной не только непрактично, но и опасно.
⇨
Таким образом, если вы однои рукои держите тюль, а второи открываете шкаф, то где-то в своеи жизни вы допустили ошибку.