Кафе Bulka с магазином хлебобулочных изделий в Москве.
15.08.2016 в 10:54
Дизайнеры и архитекторы из мастерской кросби студия разработали дизайн интерьера кафе Bulka с магазином хлебобулочных изделий, которое находится в московском парке горького среди обширных садов, тянущихся вдоль реки Москва. Таким образом, зеленая тема парка реализуется в интерьера с помощью различных приемов, создающих небольшой островок солнечного лета в короткие пасмурные дни и долгие зимние ночи Москвы
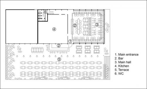
. Архитекторы придумали внедрить идею традиционной московской дачи, ориентированной, одако, для молодого поколения. Поэтажный план очень прост и симметричен. Но он может быть легко преобразован для удовлетворения требований различных форматов - официальных или повседневных.









Категории: Дизайн интерьера дома, Интерьер квартиры студии