Домик для туристов в Норвегии.
Норвежские архитекторы из бюро Jarmund/Vigsnaes AS построили уютный домик для путешественников в горах оксхорнан.
Деревянный домик Rabot Tourist Cabit назван так в честь французского географа Чарльза работа, исследовавшего этот горный регион Норвегии.
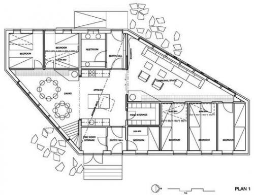
Добраться до архитектурного пристанища можно только пешком или на лыжах. Спрятаться от северных норвежских ветров и снега может целая команда туристов - дом рассчитан на 30 человек.

В небольшом доме на первом этаже уместились семь спален, комната для хранения вещей, ванные комнаты и кухня. На верхнем этаже расположились две просторные комнаты для отдыха - с высокими потолками и панорамными окнами.

Архитектурная форма дома не случайна, она повторяет очертания двух соседних горных вершин. Для оформления интерьеров архитекторы активно использовали натуральные материалы - стены, пол, потолок и большая часть мебели выполнены из дерева.

Строительство_коттеджей коттеджи_на_заказ советы_коттеджи интересные_коттеджи.




Далее читайте об интерьере для дома http://interior.ru-best.com/interer-dlya-doma/interer-dlya-doma