Дача нового времени - Ecoperch.
06.06.2016 в 10:54
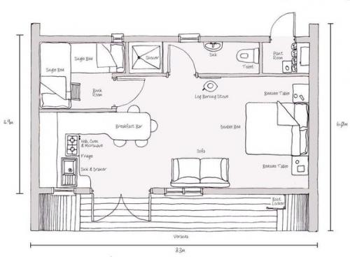
Общая площадь дома составляет немногим более 24 квадратных метров. Например, санузел всего - 3 м 2, кухня - 7 м 2, спальни для детей - 4 м 2, так же в здании есть столовая, гостиная, спальня с двуспальной кроватью.
Дизайнеры и архитекторы из США создали эту конструкцию в природном стиле, которая является обычным летним домиком для семейного проживания.
Интерьер в как можно более натуральном и простом стиле выполнен. Максимальное количество человек проживающих единовременно в этом доме составляет 6 человек. Здесь мы можем наблюдать очень рациональное использование пространства, которое может быть полезно для каждого, кто планирует построить или модернизировать свою собственную дачу.
Дача вдохновение_Rockwool.



Категории: Интерьер для дома, Мебель для кухни, Идеи дизайна спальни, Мебель для гостиной, Дизайн интерьера дома, Стили интерьеров квартир