Всё об интерьере для дома и квартиры

Лучшие идеи для дизайна интерьера, полезные советы, интересные статьи

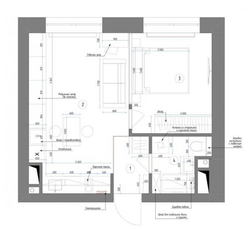
Дизайн - проект студии 33, 54 кв.

11.08.2022 в 18:29

м.

Дизайнер: Козырева а.

Прихожая 2, 48.
Кухня - гостиная 18, 01.
Спальня 9, 63.
Санузел 3, 42.

Как вам? Напишите в комментариях.

Идеальные решения для дизайна вашего интерьера. Необычные идеи оформления
Дизайн - проект студии 33, 54 кв..

Дизайн - проект студии 33, 54 кв. 01
Дизайн - проект студии 33, 54 кв. 02
Дизайн - проект студии 33, 54 кв. 03
Дизайн - проект студии 33, 54 кв. 04
Дизайн - проект студии 33, 54 кв. 05
Дизайн - проект студии 33, 54 кв. 06
Дизайн - проект студии 33, 54 кв. 07
Дизайн - проект студии 33, 54 кв. 08