Весь старый интерьер и перекрытия были снесены, сохранились только несущие стены и крыша.
Белые стены подчеркивают деревянные элементы из бука, которые смягчают и согревают свет. Поскольку это небольшая площадь, изготовленная на заказ мебель была разработана до мельчайших деталей, чтобы оптимизировать все возможные места для хранения.

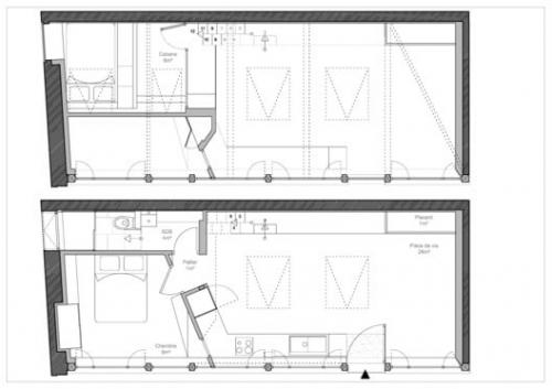
В ответ на просьбу клиента, который хотел дополнительную комнату, несмотря на небольшую площадь, архитектор предложил очень светлую кабину, расположенную в верхней части объема, с видом на гостиную с высоты птичьего полета. Здесь есть рабочее место с местом для хранения вещей, раскладной письменный стол и большая кровать для двух человек.

Минидом мини лофт.







