Проект двушки 70 кв.
м в Москве.
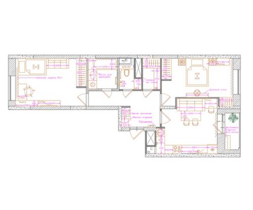
Нам в работу попалась стандартная двушка. Нужно было сделать спальню и детскую - отдельные изолированные комнаты, поэтому кухня взяла на себя еще и функцию гостиной.
Кухня уже изначально была около 13 кв. м, да мы еще добавили к ней немного от спальни и получилось 16 кв. м. в получившуюся нишу отлично вписался диван, при этом у самой кухни осталось много свободного пространства.

Холл - не самое удачное помещение. Куча дверей получилась, зато сама зона у входной двери достаточно просторная. И на том спасибо.
Ванную и туалет смысла объединять не было. А раз нет смысла, то лучше их оставить отдельными помещениями - это удобнее для жизни, даже если квартира не очень большая.

Интерьер светлый, легкий и в исполнении достаточно бюджетный.

==Основные позиции и площади==.

= Кухня= 16 кв. м.
Фартук под мрамор - Kerama Marazzi, монте Тиберио обрезной 60*60.
Двери Софья тип: 90. 03.
Кухня на заказ у наших партнеров.
Диван фрихетэн от икеа.
Стол лерхамн от икеа.
На полу Kerama Marazzi, Sg218500r галерея светлый.

= Спальня = 15. 5 кв. м.
Кровать от Askona модель Askonaromano.
Тумбочки викхаммер от икеа.
Бра - Favourite 2107-1W Tube.
На стене - ламинат Quick Step Impressive Ultra.

= Детская= 17. 3 кв. м.
Фотообои в детскую от Koza - Kids у них вообще много клевых обоев! Рекомендую.
Обои Aura, коллекция Sweetdreams.
Диванчик баккабру от икеа.

= Прихожая = 9. 7 кв. м.
Корпусная мебель на заказ у наших партнеров.
Галошница - тронэс от икеа.

= Ванна и туалет = 4. 4 кв. м. и 2. 4 кв. м.
Маленькая раковина Jacob Delafon Odeon UP E4759.
Круглое зеркалом от икеа сторйорм.
Плитка пол: Kerama - Marazzi Sg731500r меранти белый обрезной плитка стены: Kerama - Marazzi SG634200R риальто серый.

