Планировочное решение - основа основ любого дизайн - проекта.
От грамотного проектирования, знания законов эргономики, зависит очень многое. Комфорт, удобство, порядок, эстетика, экономия времени, что там говорить, само качество жизни.
Поэтому, на дизайнере лежит огромная ответственность. Ответственность за желание человека находится в своём жилище.
Когда я знакомлюсь с новым объектом, я в первую очередь знакомлюсь с людьми, которые будут в нем проживать. С их привычками, возможностями, потребностями, распорядком дня, ритмом жизни, увлечениями, характером.
Это все очень важно для дальнейшего эффективного планирования.
В ситуации с маленькими пространствами ещё интереснее и, конечно, сложнее. Тут идёт работа с каждым кв. Мм. И ещё, для меня очень важно не перегрузить пространство лишней мебелью, предметами интерьера, вещами. Я за "Здоровый" минимализм. За самое необходимое. За пустоту. Тем более, когда места совсем чуть - чуть.
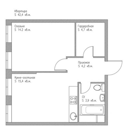
В случае с данной квартирой, хотелось, в первую очередь, оставить свободными четыре панорамных окна, не загромождать их максимально, при этом на 42 метрах разместить спальню, детскую для двух девочек, гостиную, столовую, кухню, прихожую и су.
Безусловно, изюминка проекта - прекрасные раздвижные перегородки, позволяющие впустить простор и воздух в помещение и изолировать две комнаты.
Представление о спальне, детской и су сложилось с первого раза. С кухней и гостиной пришлось немного повозиться.
Вариантов было чуть больше, здесь я выложила основные.
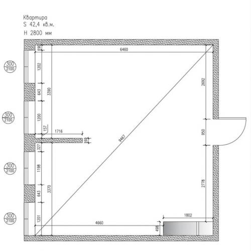
2 фото - планировка от застройщика. 3-Обмерный план, 4-варианты планировок, 5-вариант, выбранный заказчиком.
Про места хранения расскажу в следующий раз.
Вы?какой вариант выбрали бы На что вы внимание в первую очередь обращаете? Что для вас важно? Буду признательна за!



