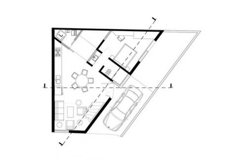
Необычный кирпичный дом с треугольным планом.
Эта резиденция объединяет элементы региональной материальности, такие как красный кирпич, благодаря близости местных производителей кирпича в сан - Педро - чолула.
Кладка выполнена силами местных мастеров кустарным способом, позволяющим создать выразительную геометрию благодаря модульному повторению. Этот интровертный дом включает естественное освещение через решетку и оконные проемы, определенные программой интерьера
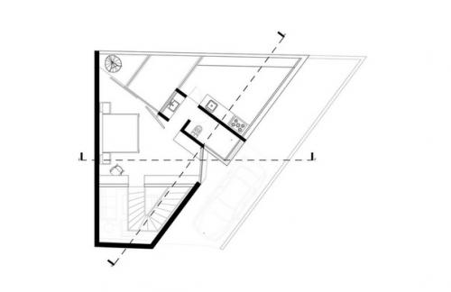
. Внутреннее пространство оформлено через центральный объём, который объединяет гостиную, столовую, кухню и главную спальню на втором уровне, а также служит вестибюлем для программы на верхнем этаже, где расположены служебные помещения, гостевая спальня и сад на крыше.

Название: дом святого Петра (Saint Peter House).
Расположение: сан Педро чолула, Мексика.
Архитектура: Estudio Tecalli, Proyecto Cafeina.
Общая площадь: 118 м 2.






