Минимализм квартиры в Тель-авиве.
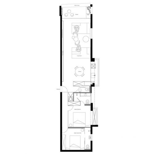
Квартиру, расположенную в центре Тель-авива, оформили израильские дизайнеры интерьеров Яэль Перри и Дафна гравински совместно с архитектором Амиром навоном. Длинное и узкое пространство площадью 80 квадратных метров предназначено для семейного отдыха и принадлежит хозяевам, которые любят принимать гостей. Чтобы сделать имеющуюся площадь более функциональной, было решено поделить её на части, разбив план по сетке
. Концепция сетки нашла свое отражение и в оформлении квартиры, включая мебель, освещение и мелкие элементы декора. Две спальни с прилегающими ванными комнатами расположены позади гостиной зоны открытого плана, которая имеет выход на террасу.

Дизайнеры стремились сделать квартиру максимально просторной и светлой, выполненной в стиле минимализма и наполненной воздухом. Интересные элементы декора должны были стать главными акцентами в интерьере. Так появились металлические стеллажи, полки и необычное освещение, выполненные дизайнерами специально для данного проект. Длина стеллажа, проходящего через всю стену в гостиной, составляет 8 метров. Он создан из железа и выкрашен в белый цвет, повторяя материал оконных рам и соответствуя общей стилистике резиденции. В ванных комнатах установлены металлические полки, но уже чёрного цвета. В прихожей главным акцентом стал красный кабель, протянутый в виде геометрического узора на стене и потолке. В гостиной внимание также привлекает модульный диван, изготовленный под заказ и отлично подходящий хозяевам с их открытым образом жизни, ведь его можно организовать любым образом, если приходят гости и им нужно предложить большое количество мест для отдыха. Три круглых мраморных стола также можно перемещать по комнате.






