Лофт апарт - проект.
Дизайнеры кот Андрей и головач Татьяна.
Концепт апартаментов "Лофт Апарт - Проект" - результат работы головач Татьяны и кот Андрея.
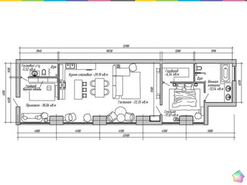
Апартаменты площадью 125 кв. м расположены на чердаке старого промышленного здания.
Апартаменты разделены на три зоны:
- Прихожая, где предусмотрен гардероб и гостевой санузел;.
- Гостиная и кухня - столовая представляют собой одну большую дневную зону;.
- Спальная зона со своей гардеробной и ванной комнатой.
В здании сохранены все элементы в их первоначальном виде: высокие потолки, окна в пол, кирпичные стены, бетонные плиты, металлические колоны. Не смотря на всю брутальность здания, мебель и декор подобраны таким образом, чтобы интерьер смотрелся элегантным, изящным и в тоже время уютным.
Ощущение присутствующей истории в элементах нашего интерьера делает апартаменты привлекательными, выгодно отличая их от современных интерьеров.









Смотрите ещё новости о мебели для кухни http://interior.ru-best.com/mebel/mebel-dlya-kuhni