Кухня с эркером дизайн. Дизайн кухни с эркером
Кухня с эркером дизайн. Дизайн кухни с эркером

Кухня с эркером встречается в типовых домах, например, в П-44Т, домах индивидуальной застройки и. Кроме того, эркер может быть образован в результате перепланировки и совмещения с лоджией или балконом.

Если вы имеете именно такую кухню, то будьте уверены – вам крупно повезло. Выступ любой формы и размера можно обыграть в свою пользу, реализовав идеи организации и зонирования пространства, которые недоступны для стандартных кухонь. И все же, планировка и разработка проекта кухни с эркерным окном может вас серьёзно озадачить. В этой статье мы рассмотрим решения для кухонь с эркерами разных площадей в домах П-44Т и других типов.
Решаем дизайн-задачу. Дано: эркер на кухне
Эркер – это выступ на фасаде здания, позволяющий:
- Увеличить пространство помещения;
- Улучшить его освещенность;
- Создать оригинальный дизайн интерьера.
Кроме того, нужно отметить, что как правило, кухни с эркером в домах любого типа относительно не маленькие – имеют площадь около 10 кв.м, в домах П-44Т чаще всего метраж составляет около 13 кв.м.

Какие еще данные нужно иметь в виду, создавая свой дизайн-проект? Конечно же, форму эркера.
Встречаются выступы разной формы:
- Округлой;
- Прямоугольной;
- Многогранной;
- Для серий П-44Т, П-44М, П-44К и других типовых домов характерна кухня с треугольным эркером, угловым полуэркером и трапецевидным выступом.
Варианты планировки и зонирования

Существуют следующие варианты организации нестандартного пространства с выступом:
- Эркер как столовая зона;
- Эркер как рабочая зона со столешницей, мойкой и местом для хранения;
- Эркер как зона для отдыха, приватное место для рукоделия, работы, чтения и т.д.;
- Эркер как зимний сад.

Зонирование кухни с эркером бывает:
- С четким разделением зон эркера и кухни занавесом, перегородкой, ширмой. В этом случае, в этой зоне может быть зона отдыха с диваном, домашний сад, кабинет или просто иногда изолируемая столовая зона;
- Чаще всего эркер является важной частью пространства, смысловым центром кухни, определяющим ее оформление, расстановку мебели и планировку.
Устройство обеденной зоны

Размещение обеденной группы в зоне эркера – это первая идея, которая приходит на ум при создании дизайн-проекта для кухни любой формы и площади. И эта идея оправдана с функциональной, финансовой и декоративной точки зрения. Устроив здесь столовую, вам не придется затевать хлопотный перенос коммуникаций, при этом вы оставите достаточно пространства для гарнитура, барной стойки и даже.
Советы:
- Стол практичнее выбирать раздвижной и на время приема гостей разворачивать его вдоль кухни;
- Желательно, чтобы форма стола/дивана соответствовала форме архитектурного выступа хотя бы приблизительно;
- Кроме того, стоит оформить и потолок в соответствии с этой формой – так вы создадите визуальное зонирование пространства;
- Окно в зимнее время лучше утеплять, также стоит утеплить и пол.
Идея 1. Столовая группа с диваном
Небольшой диван на кухне можно разместить вдоль окна. Особенно этот вариант подходит для кухни с трапециевидным эркером, как, например, в этом проекте, разработанном для кухни в доме серии П-44Т. Здесь дизайнер выбрал, у окна поместил диван, повторяющий форму выступа, радиаторы закрыл декоративными экранами, трубы спрятал в фальш-колонну, а для симметрии сделал такую же колонну с другой стороны. Кроме того, трапециевидный эркер определил форму.
А вот еще один проект от дизайнера Светланы Ильиной.


Если же эркер является треугольным, то лучше диван или скамью разместить вдоль одной стороны эркера, а не поперек него, как и поступила дизайнер Олеся Шляхтина, разрабатывая проект для интерьера кухни площадью 9,5 кв. м в классическом английском стиле в доме, опять же, серии П-44Т. Имейте в виду, что скамья или диван на подобной небольшой кухне должны быть с возможностью хранения вещей под седушкой.

Для кухни с полуэркером актуальны следующие варианты размещения дивана и обеденной зоны.

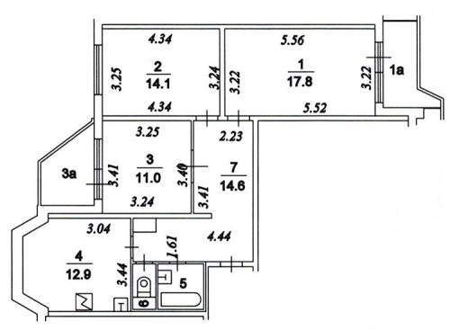
Кухня п44т эркер размеры. схема планировки трёхкомнатной квартиры П-44Т с размерами

Открываем входную дверь и попадаем в предбанник. Впереди идёт стена с проёмом, в котором изначально сделана небольшая арка. Справа за дверью, есть небольшое пространство, куда может поместиться небольшая гардеробная или тумба для обуви.

В этом варианте мы видим пример такой тумбы под обувь.

Так же это место может занять красивое большое зеркало в полный рост.

Проходим вперёд и попадаем в самый центр прихожей. Нас встречают три двери. Слева большая двойная дверь ведет нас в комнату 11 кв.м. и балконом башмачок. И две рядом расположенные двери - это комнаты. Что правее самая большая комната 17.8 кв.м. с балконом сапожок, и что слева маленькая комната 14 кв.м. без балкона.

Несколько интересных идей в дизайне прихожей трехкомнатной квартиры. На фото видно, что в ближнюю нам комнату слева поставили двери купе.

Ещё один интересный вариант прихожей. В арку смонтировали освещение.

А здесь по правую сторону синей прихожей, в дизайне применили колонны с освещением.

Расстановка мебели в прихожей
Если в комнатах нужно больше простора и не захламлять шкафами комнаты, для этих целей подойдет прихожая.

По длинной стене установится большой шкаф.

Кто полностью не ушел в электронные книги, а собирает дома домашнюю библиотеку, интересное решение будет если в прихожей разместить полки для книг.

В углу впишутся угловые полки.

Комната с балконом утюжок
С прихожей заходим в комнату с большим дверным проёмом. Обычно эту комнату используют под гостиную или зал. Комната хоть и не очень большая, но квадратная.

А если убрать оконные рамы и демонтировать часть подоконника, можно продлить комнату и соединить вместе с балконом.

Не всегда хватает жильцам трёх комнат. Частенько на балконах организовывают рабочие кабинеты. Оказывается и они находятся в такой ситуации, когда дорог каждый квадратный метр.

Дизайн кухни с угловым эркером. Кухня с эркером в многоквартирном доме

Эркеры в кухне делают её светлее, увеличивая комнату, придают ей особый, нетривиальный вид.
Если высота окон велика, то в комнату поступает много света, но минимизируется площадь стен, рядом с которыми можно поместить рабочую зону. В большинстве случаев в эркере располагают столовую группу – красивый стол и стильные стулья для семьи и гостей.

Кухня с эркером – достаточно сложная для декорирования зона.
Обратите внимание! Большая площадь остекления часто приводит к понижению температуры в помещениях с эркерами. Рекомендуется грамотно рассчитать количество отопительных регистров. Разнообразие размеров современных радиаторов дает возможность подобрать их в едином стиле для монтажа под окнами и у глухих стен.

Эркер – выразительный архитектурный элемент, выступ в стене, который внутренней частью соединяется с основной комнатой.
В ситуации, когда высота окон стандартная, эркер можно обустроить под рабочую зону кухни. Столешница может включить в себя подоконники. Смотрится такая кухня необычно и авангардно.

Естественное освещение дает возможность экономить электричество.
Важно: под окна эркера нельзя монтировать варочные панели или ставить плиты. В этой части помещения чрезвычайно сложно встроить вытяжку. Тепло же, которое выделяется с нагреваемых поверхностей, а также пар от готовки будут приводить к запотеванию окон.

Если смотреть упрощенно, то эркер – это своего рода лоджия, соединенная с кухней, только значительно лучше утепленная.
Проекты кухни с эркером. Варианты планировок
Ни в коем случае нельзя допускать, чтобы дизайн особенной кухни превращался в архитектурную нелепицу. Какой бы вариант обустройства ни был взят за основу, необходимо соотносить его с особенностями конкретного помещения и нюансами его планировки. Например, важно учесть полезную площадь комнаты, что будет определять тип мебели, ее габариты, количество, расцветку и способ расстановки .


Проект большой кухни с эркерным окном может подразумевать зонирование пространства на 3-4 зоны: рабочую, столовую, место отдыха, зимний сад (рабочий уголок). В комнате 8-9 кв. м мало места для размаха, здесь получится создать только обеденную и рабочую зоны. При этом обеденная группа будет компактной, рассчитанной максимум на четырех человек.


Чтобы сделать ее более гостеприимной, можно задействовать в обустройстве мебель (диваны или модульные скамьи) с неширокими сиденьями.
В кухне квартиры или частного дома с метражом 14-18 кв. м, осложненным эркером либо полуэркером, можно вместить небольшую зону отдыха или даже небольшой рабочий уголок. При этом эркер можно задействовать как обособленный участок, отделив его подиумом, ширмой либо поворотом мебели. Вместить 3 зоны в пространство комнаты несложно. Если планировка указывает на жесткие рамки для установки гарнитура с рабочим столом и мойкой, то, исходя из ширины и длины комнаты, можно:
- в широкой комнате стол со стульями поставить напротив гарнитура, а эркер обустроить диваном и кофейным столиком;
- при достаточной ширине поставить стол со стульями посередине комнаты, заняв эркер под гостиную с диваном или креслами;
- в узком помещении использовать барную стойку под стол либо занять зону эркера предметами обеденной группы, оставив вдоль стены с гарнитуром место для кухонной скамьи;
- отделить эркер легкими шторами, расположив в нем зимний сад, кресло и приставной столик, купить мебель со встроенным обеденным столом либо стойкой.
Если гарнитур расположен вдоль короткой стены, зону готовки можно ограничить компактным столиком, оставив место для свободного перемещения по кухне. Стол или стойка могут быть приставлены к рабочему столу с другой стороны, дополнены стульями нужной высоты. Обеденную зону можно отделить небольшим стеллажом, оставляя пространство для отдыха.
Планировка расположения мебели может быть не только линейной (прямой) или угловой. Помимо этого, в зависимости от ширины комнаты она бывает П-образной. При этом П-образным способом заставляют узкую стену и часть двух к ней прилегающих. Для разграничения функциональных зон в таких случаях столик либо барную стойку ставят вплотную к рабочему столу, располагающемуся на расстоянии 1 м от гарнитура.

Если эркер задействуют под размещение гарнитура с напольными ящиками, бутылочницей и холодильником, обеденную группу размещают в центре кухни либо у одной из ее стен. При этом нежелательно обустраивать обеденную зону вблизи дверного проема .


Кроме того, нежелательно устраивать ее возле балконной двери – доступ на балкон должен оставаться свободным.
Обеденное пространство
Самым типовым дизайном станет задействование эркера под обеденную зону. Это бюджетное решение, которое не требует переноса коммуникаций. В таком случае расстановка мебели может быть разной, что зависит от типа эркера.


Например, его округлую либо граненую форму можно обыграть мебелью, по форме совпадающей с эркером.
Обеденная зона в эркере. Зона готовки в эркере
Один из самых рациональных способов обустроить кухню с эркером — сделать рабочую зону.
В выступе устанавливают рабочие столы без навесных шкафов, причем газовые плиты или другое газовое оборудование тут устанавливать нельзя.
Электрические приборы ставить можно, но вряд ли стоит — вытяжку тут не повесишь, по-другому организовать удаление загрязненного воздуха сложно и затратно. Так что это хорошая идея, но сложная в реализации.
Можно в эркере на кухне установить напольные кухонные шкафчики
Если позволяет планировка, сюда можно вынести стол с мойкой, но обычно приходится тянуть трубы водопровода и канализации — стояки расположены далеко. В результате получается довольно длинная трасса, что тоже дорого в устройстве и не слишком удобно при эксплуатации: если трубы забьются, чистить их — не самая простая и приятная работа.
Планировка кухни с мойкой в эркере
Так что в выступе на кухне располагают напольные шкафы со столешницей. Работать, глядя в окно, приятно. Без проблем в этой зоне можно поставить мини-холодильник или морозилку высотой до метра.
При такой высоте они вписываются под столешницу. Холодильного оборудования данного размера, достаточно для одного-двух человек. Этот вариант можно увидеть в квартирах-однушках.
Тут особо негде развернуться и это, пожалуй, лучший дизайн кухни с эркером для такого случая.
Неплохое решение, но не идеальное
Важно
Недостатка у организации в эркере рабочей кухонной зоны два. Первый — доступ к окнам закрыт. Основное достоинство эркера — более широкий обзор. При устройстве рабочей зоны в кухонном эркере, видом можно наслаждаться только во время работы. Сидя в другом конце помещения мало что увидишь. Это тоже неплохо, но…
Второй недостаток — сложность реализации большинства задумок, а это дополнительные расходы. Даже если просто поставить мебель, ее придется делать на заказ. Собрать модульную кухню не получится — планировка-то нестандартная, нужны угловые шкафы с нестандартными углами и наполнением. Так что только под заказ, а это немалые деньги.