Как своими руками сделать шкаф купе?
В том случае, если вам надоело что вечно искать место, чтоб сложить свои вещи, а варианты покупных шкафов - купе не походят по цвету, стилю и даже размеру. Можно конечно попытаться заказать шкаф по своим чертежам, но если вы хотите сэкономить и получить действительно такой шкаф, который вы хотели - имеет смысл сделать его самостоятельно.
Выбор места.
Прежде всего, вы должны определиться в какой комнате будет стоять шкаф - купе, и какие примерно размеры у него должны быть.
Лучше для этого взять рулетку и просто замерить то место где будет стоять ваш будущий шкаф, запишите на листок ширину, длину в высоту мебели.

Преимущества и недостатки шкафа купе.
Преимущества:
Можно выбрать любой подходящий вам цвет;.
Любая внешняя отделка, вы сами выбираете материал для шкафа;.
Любое количество отделений, которые выбираете вы сами;.
Индивидуальная планировка;.
Экономия пространства;.
Экономия денег (шкаф обойдется вам гораздо дешевле, чем покупной или на заказ);.
Возможность установки внутреннего освещения;.
Возможность маскировать недостатки помещений (неровность стен и так далее);.
Шкаф легко можно в любой интерьер вписать.
Экономия свободного пространства за счет разъезжающихся дверей.
Недостатки шкафа:
Недостатки напрямую со стандартами связаны.
Нельзя делать шкаф длиннее 5 метров;.
Определенная ширина дверей;.
Есть ограничение доступа к вещам, которые находятся на разной высоте (к верхним добираться сложнее.

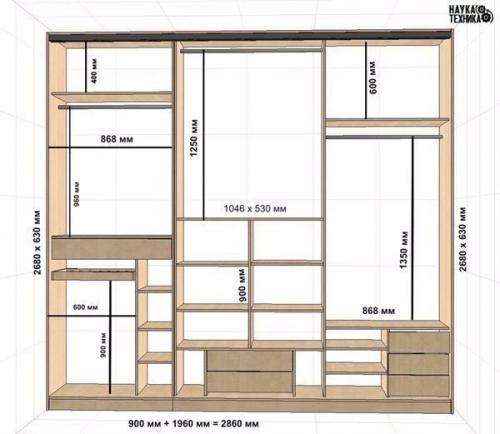
Чертежи для шкафа купе.
Замерив, какое пространство будет занимать ваш будущий шкаф - купе, можно приступать к разработке плана.
В том случае, если у вас возникают сложности по оформлению вашей мебели, то мы предлагаем вам несколько образцов:

Для воплощения плана в жизнь понадобится:
Дсп заранее распиленное.
Дрель (для саморезов) и для просверливания отверстий.
Перфоратор (если понадобится делать отверстия в стенах).
Молоток.
Резиновый молоточек.
Строительный уровень, рулетка, метровая линейка.
Клей пва.
Деревянные и стальные уголки.
Саморезы, дюбели, направляющие, колесики.

Последовательность установки шкафа купе.
Шкаф для прихожей или другой комнаты собрать относительно легко, главное не ошибиться в приготовлении комплектующих для него, которые должны быть точно в соответствие с чертежом.
Сборку шкафа нужно начать с подсчета нужного количества материала и его распила. Затем устанавливаем нижнюю планку дсп, которую предварительно лучше обработать антисептком.
Проверьте по уровню, чтоб поверхность была идеально ровной, если нет - то поставьте деревянные подставки и выровняйте её.
Интересно! Шкаф - витрина из старого чемодана. Тут!

Когда нижняя часть выровнена и установлена, нужно заняться боковыми (всеми вертикальными) частями, а затем перегородками.
Устанавливаем их при помощи уголков и саморезов (большую прочность дают металлические уголки.
Так же не забывайте о вертикальности (при помощи строительного уровня) при установке её ещё можно немного менять.
Когда будет установлен верхний лист дсп, то основу конструкции можно считать готовой. Обращайте внимание на вертикальность.
В процессе монтажа ее можно корректировать.
Затем нужно установить и закрепить уголками все мелкие полочки (точно по чертежу), металлическими блестящими трубами для будущих вешалок с одеждой.

Теперь займемся дверцами для шкафа купе.
Дверцы можно или заказать отдельно с любым покрытием или изготовить из этого материала самим.

Учтите, что ширина одной створки не должна превышать 1 метра.
В случае если у нас длина шкафа 240 см, то делаем три створки (240 делим на три и получается 80, и прибавляем 2 см на нахлест. Итого у нас выходит 82 см каждая створка.
Ширину высчитали, теперь займемся высотой.
У нас высота всего шкафа по плану 260 см, от этого мы должны вычесть высоту подкладок (сверху и внизу) по 1. 6 см и зазор для колесиков ещё по 1. 5 см вверху и внизу.
260-3. 2-3 = 253. 7 см.
Но при расчетах нужно учитывать, что ширина подкладок и высота колесиков может отличаться.
Берем заранее подготовленные по ширине направляющие, и крепим по две штуки вверху и внизу шкафа, следите за параллельность.
Сначала крепим с помощью саморезов верхние направляющие, затем при помощи отвеса - размещаем и крепим нижние. В нижнюю направляющую нужно вставить стопоры.
После монтажа стопоров займемся дверцами (лучше это делать вдвоем. Первой вставляется в паз верхняя дальняя створка, и следите, чтоб колесики зашли до щелчка.
Так же поступаем с нижней частью дверцы, сразу проверьте, свободно ли двигается дверца. По такому же принципу ставим вторую дверцу и третью. В последнюю очередь на боковые части створок наклеиваем специальные ленты, чтоб дверцы не бились о боковые стороны шкафа.
Сама по себе технология создания шкафа очень проста, нужны только подходящие инструменты и хорошо распиленные листы дсп. Собрав шкаф своими руками, вы не только сделаете жене приятный подарок, но и сэкономите почти половину стоимости готового изделия.
Читайте далее новости об интерьере деревянных домов http://interior.ru-best.com/interer-dlya-doma/interer-derevyannyh-domov