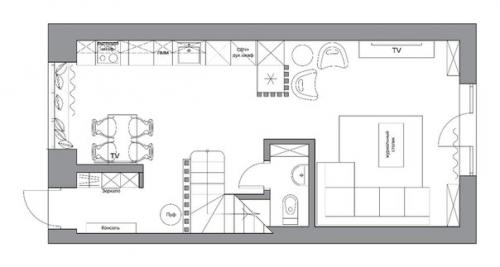
Интерьер таунхауса в г. Аксай (первый этаж), 43 кв.
м. от студии Id358.
Стилистически интерьер тяготеет к эко - минимализму: локальные поверхности белых стен, каменного пола и черных лакированных фасадов кухни украшает теплое светлое дерево. Декоративные перегородки выполнены из бруса и эффектно подсвечены скрытой светодиодной лентой
. Перегородок в интерьере две: первая отделяет зону прихожей от лестничного марша, вторая - зону гостиной от кухни, обе декорированы зелеными растениями, что отсылает к эко - тематике и является сегодня модным трендом. Ярким, отчасти лофтовым акцентом, выступает стена в гостиной, отделка - плитка в цвет металла испанской фабрики Benadresa, коллекция Xtreme Copper. Её рыже - коричневая неоднородная текстура добавляет тепла и уюта.

Декоративной нитью в интерьере прошла тематика манхэттэна - пожелание заказчика. Контрастные и графичные изображения архитектуры города лаконично вписались в созданный интерьер.







Смотрите ещё об интерьере кухни в доме в разделе http://interior.ru-best.com/interer-dlya-doma/interer-kuhni-v-dome