Всё об интерьере для дома и квартиры

Лучшие идеи для дизайна интерьера, полезные советы, интересные статьи

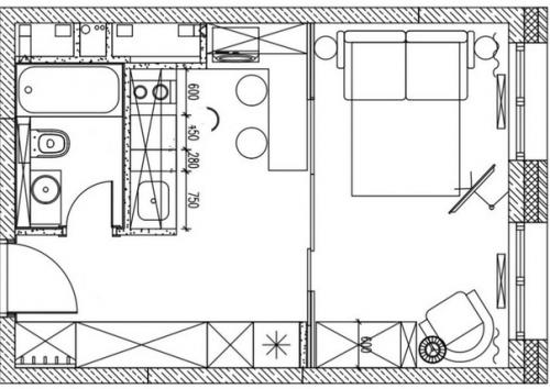
Интерьер небольшой квартиры площадью 27 кв.

19.03.2022 в 12:54

м.
Дизайнер интерьера разделил квартиру на две части стеклянной перегородкой. Не смотря на то, что пространство разделено, визуально кухня - столовая и гостиная - спальня выглядят как одно целое. Везде, в том числе и в ванной комнате, для отделки использовались натуральные материалы.
Интерьер небольшой квартиры площадью 27 кв.
Автор проекта: бюро Indahouse.

Интерьер небольшой квартиры площадью 27 кв. 01
Интерьер небольшой квартиры площадью 27 кв. 02
Интерьер небольшой квартиры площадью 27 кв. 03
Интерьер небольшой квартиры площадью 27 кв. 04
Интерьер небольшой квартиры площадью 27 кв. 05
Интерьер небольшой квартиры площадью 27 кв. 06
Интерьер небольшой квартиры площадью 27 кв. 07
Интерьер небольшой квартиры площадью 27 кв. 08